Vuokrataan liiketilat - Helsinki
Kaivopiha, Mannerheimintie 3, Keskusta, 00100 Helsinki #10754621
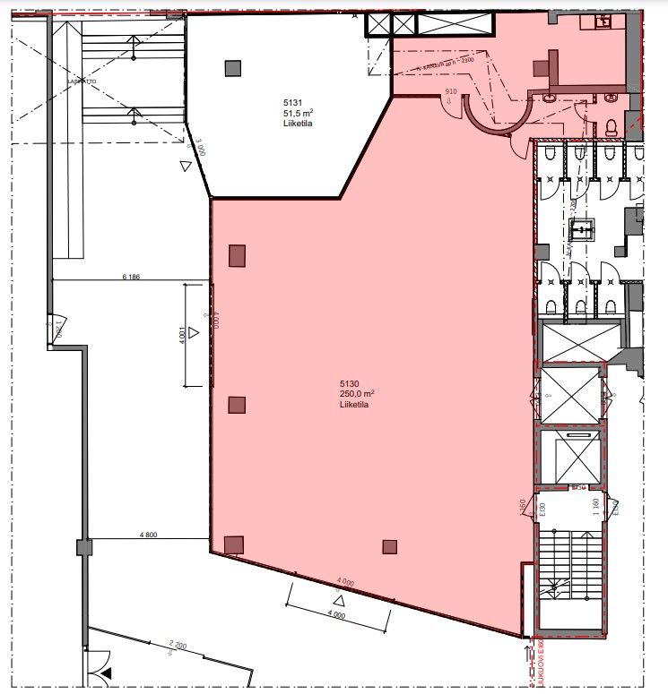
Edustava liiketila Helsingin kävelykeskustassa Kaivopihalla, ikkunat lattiasta kattoon, sisäänkäynti kahdelta sivulta. SOITA ja SOVI ESITTELY, puhelin: 09 7745 100.
Osoite
Mannerheimintie 3, 00100 Helsinki
Tilatyyppi
Liiketilaa
250 m2
Pohjapiirros
Kiinteistö
Kaivopiha
Sijainti
Ydinkeskustassa City-Korttelissa.
Ympäristö
Liikekeskus Kaivopiha-Citykortteli
Pysäköinti
Maanalainen pysäköinti Eliel, Stockmann, Forum
Kulkuyhteydet
Juna, ratikat, bussit
Vapautuu
Heti
Katutasossa
Näkyvällä paikalla
Liitetiedostot
Ota yhteyttä
Senaatin Notariaatti Oy LKV
Lämmittäjänkatu 4 A
FIN-00880 Helsinki
Tel:
Näytä puhelinnumero
+358 9 7745 100
Pyydä lisätietoa
