Vuokrataan - Helsinki
Eteläesplanadi 22, Kaartinkaupunki, 00130 Helsinki #10754108
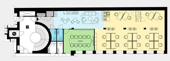
Vuokrattavana moderni 3.kerroksen toimistotila, jossa avotilan lisäksi neuvotteluhuone, keittiö-lounge ja 2 wc:tä.
Kysy lisää sp: heli.reinberg@rhg.fi.
Osoite
Eteläesplanadi 22, 00130 Helsinki
Vapautuu
Kysy
Huoneiden lukumäärä
1
Energiatehokkuusluokka
Ei lain edellyttämää energiatodistusta
Ota yhteyttä
RHG Real Estate
Hämeenkatu 2 B20, 20500 Turku
Näytä puhelinnumero
020 734 4020
Heli Reinberg
Näytä puhelinnumero
040 647 4900
Pyydä lisätietoa
