Vuokrataan varastotilat - Oulu
Äimäkuja 6, Äimärautio, 90400 Oulu #10753944
Tuotantotila / Varasto Oulu
Osoite
Äimäkuja 6, 90400 Oulu
Tilatyyppi
Varastotilaa
253 - 2436 m2
Kiinteistö
Vuokrattavana siistiä varasto- ja hallitilaa
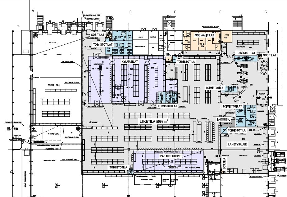
Vuokrattavana 2436 m²:n varastotilakokonaisuus, joka on toiminut aikoinaan Keskon jakelukeskuksena.
Tiloissa on valmiina viileätila noin 700m2 ja pakkastilaa 253 m2.
Rakennuksessa on tarjolla oivat ja edulliset tilat moneen käyttöön.
Lastauslaiturit kahdella seinustalla ja yksi sisälastaustila.
Oulun Äimärautiossa
Suuri varasto- ja logistiikkakiinteistö sijaitsee Oulussa Äimäraution kaupunginosassa.
Äimäraution alue on tunnettu ja kehittyvä alue erinomaisella sijainnilla ja hyvillä liikenneyhteyksillä.
Äimäkujalta on matkaa Oulun ydinkeskustaan n. 3,5 km. Oritkarin satama- ja terminaalitoiminnot sijaitsevat n. 1 km etäisyydellä.
Lähistöllä sijaitsevat myös K-Rauta sekä autoliike Wetteri.
Kohteessa on isot piha-alueet ja runsaasti autopaikkoja.
Vuokrattavana 2436 m²:n varastotilakokonaisuus, joka on toiminut aikoinaan Keskon jakelukeskuksena.
Tiloissa on valmiina viileätila noin 700m2 ja pakkastilaa 253 m2.
Rakennuksessa on tarjolla oivat ja edulliset tilat moneen käyttöön.
Lastauslaiturit kahdella seinustalla ja yksi sisälastaustila.
Oulun Äimärautiossa
Suuri varasto- ja logistiikkakiinteistö sijaitsee Oulussa Äimäraution kaupunginosassa.
Äimäraution alue on tunnettu ja kehittyvä alue erinomaisella sijainnilla ja hyvillä liikenneyhteyksillä.
Äimäkujalta on matkaa Oulun ydinkeskustaan n. 3,5 km. Oritkarin satama- ja terminaalitoiminnot sijaitsevat n. 1 km etäisyydellä.
Lähistöllä sijaitsevat myös K-Rauta sekä autoliike Wetteri.
Kohteessa on isot piha-alueet ja runsaasti autopaikkoja.
Vapautuu
Kysy
Kerros
1
Lastauslaituri
Ota yhteyttä
Logistila Oy
Kiilakiventie 1, 90250 OULU
Sami Karppinen
Näytä puhelinnumero
+358401994722
Pyydä lisätietoa
