Vuokrataan toimistotilat - Tampere
Kuninkaankatu 30 A, Keskusta, 33100 Tampere #10753873
Toimistotilaa Kuninkaankadulla
Osoite
Kuninkaankatu 30 A, 33100 Tampere
Tilatyyppi
Toimistotilaa
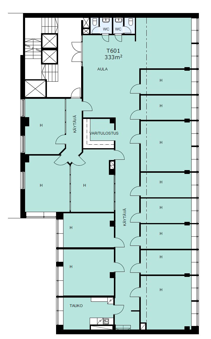
333 m2
Kiinteistö
Kuudennen kerroksen toimistotila heti vapaana. Tilan koko on 333 m2 ja se koostuu erillisistä huoneista.
Tämä tila soveltuu lyhytaikaiseen käyttöön tai vaikkapa väistötilaksi. Samassa kiinteistössä on myös toisessa kerroksessa pari pienempää tilaa vapaana.
Erinomainen sijainti Kuninkaankadulla - Sokoksen sivuovea vastapäätä.
Tämä tila soveltuu lyhytaikaiseen käyttöön tai vaikkapa väistötilaksi. Samassa kiinteistössä on myös toisessa kerroksessa pari pienempää tilaa vapaana.
Erinomainen sijainti Kuninkaankadulla - Sokoksen sivuovea vastapäätä.
Vapautuu
Kysy
Kerros
6.
Ota yhteyttä
Logistila Oy
Kauppakatu 14, 33210 TAMPERE
Jukka Nukari
Näytä puhelinnumero
0440759789
Pyydä lisätietoa
