Vuokrataan toimistotilat - Espoo
Klovinpellontie 1-3, Mankkaa, 02180 Espoo #10753622
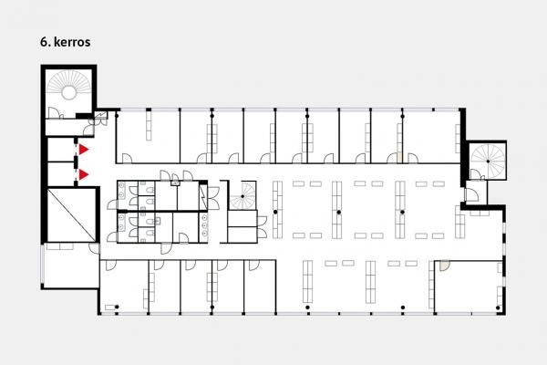
Kolmen kerroksen toimistokokonaisuus Torni II. Modernia, kattava iso toimistokokonaisuus.
Osoite
Klovinpellontie 1-3, 02180 Espoo
Tilatyyppi
Toimistotilaa
1743 m2
Kiinteistö
Kolmen kerroksen toimistotila, oma sisäinen porras
Tila muokattavissa käyttäjän tarpeita vastaamaan.
Torni II Business Park Mankkaa sijaitsee erinomaisten liikenneyhteyksien varrella, Kehä II:n ja Turunväylän risteyksessä.
Tila muokattavissa käyttäjän tarpeita vastaamaan.
Torni II Business Park Mankkaa sijaitsee erinomaisten liikenneyhteyksien varrella, Kehä II:n ja Turunväylän risteyksessä.
Pysäköinti
Pysäköintipaikkoja kahdessa kellarikerroksessa ja piha-alueella.
Palvelut
Aulapalvelu, henkilöstöravintola, auditorio, neuvottelutilat, kuntosali, ja saunatilat
Majoitusmahdollisuuden tarjoaa Turunväylän toisella puolella sijaitseva hotelli Scandic Espoo.
Majoitusmahdollisuuden tarjoaa Turunväylän toisella puolella sijaitseva hotelli Scandic Espoo.
Kulkuyhteydet
Hyvät
Vapautuu
07.04.2025
Kerros
6-8
Hissi
Ota yhteyttä
TopReal
Hietalahdenranta 17 B, 00180 Helsinki
Näytä puhelinnumero
09 6227 7852
Soita ja kysy lisää, tai tutustu www-sivuihimme!
http://www.topreal.fiPyydä lisätietoa
