Myydään muut tilat - Lahti
Paraatikatu 9, Hennala, 15700 Lahti #10753590
Hennala, kasarmi 24
Osoite
Paraatikatu 9, 15700 Lahti
Tilatyyppi
Muuta tilaa
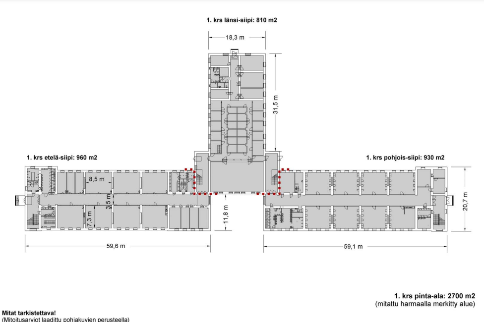
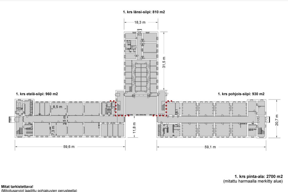
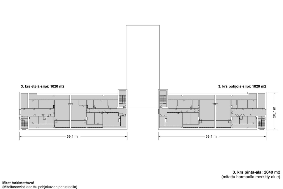
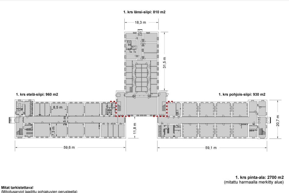
7280 m2
Pohjapiirros
Myyntihinta
1300000
Kiinteistö
Myydään kasarmirakennus 24 Lahdesta.
Hennalan kasarmialue on merkittävimpiä ja myös parhaiten säilyneitä viime vuosisadan alussa (1910) rakennettuja kasarmialueita Suomessa. Hennalan kasarmialuetta pidetään valtakunnallisesti merkittävänä ja se on listattu 2009 vahvistetussa valtakunnallisesti merkittävien rakennettujen kulttuuriympäristöjen listauksessa (RKY 2009) jossa sitä kuvaillaan seuraavasti: ”Hennalan kasarmialue on merkittävimpiä ja parhaiten säilyneitä 1910-luvulla syntyneitä kasarmialueitamme, jonka nykyilmettä leimaa historiallisen ja uudemman rakennuskannan rinnakkainelo.
Nyt myytävä kokonaisuus koostuu kahdesta suuresta, yhteensä noin 7290 m2 miehistömajoitusrakennuksesta.
Rakennukset sijaitsevat omalla 9348m2 tontilla.
Mahdollisuuksia erilaisiin toteutuksiin on runsaasti - ota yhteyttä ja kysy lisää!
RAKENNUSSUOJELUKORTTELIALUE. ALUEELLA OLEVIA RAKENNUKSIA JA PIHAA TULEE HOITAA JA KÄYTTÄÄ NIIN, ETTÄ ALUEEN KULTTUURIHISTORIALLINEN ARVO JA YMPÄRISTÖKUVA SÄILYY. ALUEELLA OLEVIA RAKENNUKSIA EI SAA PURKAA. (lisätiedot kaavamääräyksestä)
Hennalan kasarmialue on merkittävimpiä ja myös parhaiten säilyneitä viime vuosisadan alussa (1910) rakennettuja kasarmialueita Suomessa. Hennalan kasarmialuetta pidetään valtakunnallisesti merkittävänä ja se on listattu 2009 vahvistetussa valtakunnallisesti merkittävien rakennettujen kulttuuriympäristöjen listauksessa (RKY 2009) jossa sitä kuvaillaan seuraavasti: ”Hennalan kasarmialue on merkittävimpiä ja parhaiten säilyneitä 1910-luvulla syntyneitä kasarmialueitamme, jonka nykyilmettä leimaa historiallisen ja uudemman rakennuskannan rinnakkainelo.
Nyt myytävä kokonaisuus koostuu kahdesta suuresta, yhteensä noin 7290 m2 miehistömajoitusrakennuksesta.
Rakennukset sijaitsevat omalla 9348m2 tontilla.
Mahdollisuuksia erilaisiin toteutuksiin on runsaasti - ota yhteyttä ja kysy lisää!
RAKENNUSSUOJELUKORTTELIALUE. ALUEELLA OLEVIA RAKENNUKSIA JA PIHAA TULEE HOITAA JA KÄYTTÄÄ NIIN, ETTÄ ALUEEN KULTTUURIHISTORIALLINEN ARVO JA YMPÄRISTÖKUVA SÄILYY. ALUEELLA OLEVIA RAKENNUKSIA EI SAA PURKAA. (lisätiedot kaavamääräyksestä)
Vapautuu
Kysy
Ota yhteyttä
Logistila Oy
Kauppakatu 14, 33210 TAMPERE
Tuomas Lehtinen
Näytä puhelinnumero
044 491 5961
Pyydä lisätietoa
