Vuokrataan toimistotilat - Helsinki
Pasilanraitio 5, Pasila, 00240 Helsinki #10753518
Vuokrataan toimistotilaa Pasilasta.
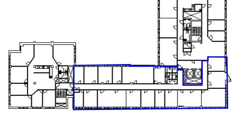
Tämä 395 m² toimistotila sijaitsee kiinteistön 3. kerroksessa. Toimisto koostuu erikokoisista huoneista, ja se soveltuu hyvin esimerkiksi terapiapalveluita tarjoavan yrityksen käyttöön. Tila remontoidaan uudelle vuokralaiselle.
Pasilanraitio 5 sijaitsee Länsi-Pasilassa. Kiinteistön tilat ovat jäähdytyksellä varustettuja ja ne ovat muunneltavissa vuokralaisen tarpeiden mukaan. Kauppakeskus Tripla sijaitsee kadun toisella puolella tarjoten monipuoliset palvelut ja lukuisat lounasravintolavaihtoehdot. Pasilan alue kehittyy koko ajan merkittävämmäksi kaupunginosaksi niin työpaikkojen kuin asumisenkin suhteen.
Kysy lisää numerosta 044 723 4700 tai info@bref.fi. Palvelumme on tilanhakijoille ilmainen.
Bureau Real Estate Finland Oy
Lars Sonckin kaari 16, 02600 Espoo
Näytä puhelinnumero
0447234700
Bureau Real Estate Finland Oy
https://www.bref.fi