Vuokrataan toimistotilat - Helsinki
Hämeentie 135, Arabia, 00560 Helsinki #10753505
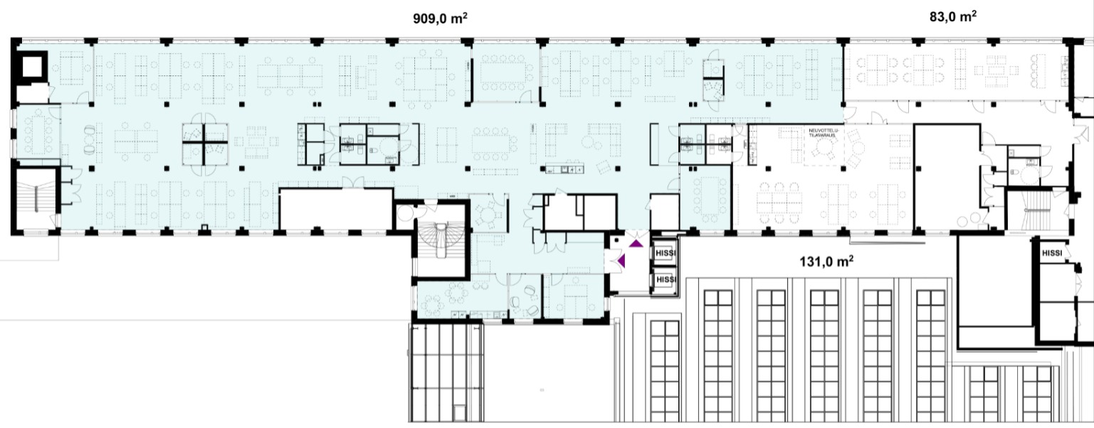
Tämä tila on juuri remontoitu, ja sen viihtyisä tunnelma on taattu. Valoisassa toimistossa on upeat näkymät Toukolan suuntaan ja Vanhankaupunginlahdelle. Tämä toimistohuoneisto koostuu lähinnä avokonttorista, jossa tehokas kommunikointi kollegoiden kanssa onistuu helposti. Neuvotteluhuoneissa puolestaan onnistuu yksityisempi työskentely tiimin kesken. Kattavan kokoisiin tiloihin kuuluu omat taukotilat keittiöineen sekä wc-tilat. Tila voidaan jakaa kahdeksi huoneistoksi.
Historiallisen tehdaskorttelin huomaan on muodostunut erilaisten luovien toimijoiden sekä luovan alan opiskelijoiden ainutlaatuinen yhteisö, jossa syntyy yhdessä tekemällä uusia, pitkälle tulevaisuuteen kestäviä ideoita ja innovaatioita. Lähivuosina korttelista jalostuu ennennäkemätön kaupallisten ja julkisen palveluiden kokonaisuus. Arabia135 -kortteli on monipuolisten palveluiden sekä luovien toimijoiden keskittymä, jonne kaikki ovat tervetulleita viihtymään historiallisessa ympäristössä.
Croisette on uusi ja innovatiivinen toimitilojen välitysyritys Suomessa. Meillä on vahva halu auttaa teitä löytämään paras toimitilaratkaisu mahdollisimman vaivattomasti.
Huomaathan, että kaikki vapaat ja vapautuvat tilat ovat kauttamme saatavilla. Osa tiloista on hiljaisessa markkinoinnissa, mutta ottamalla meihin yhteyttä saat nekin tietoosi.
Palvelumme on tilanhakijoille täysin maksutonta.
Hissi
Croisette Real Estate Partner
Erottajankatu 5 A 6, 00130 Helsinki
Näytä puhelinnumero
+358 400 585 857
Croisette Vuokraus
Näytä puhelinnumero
+358400585857
