Vuokrataan toimistotilat, liiketilat - Helsinki
Ratavartijankatu 3, Itä-Pasila, 00101 Helsinki #10753397
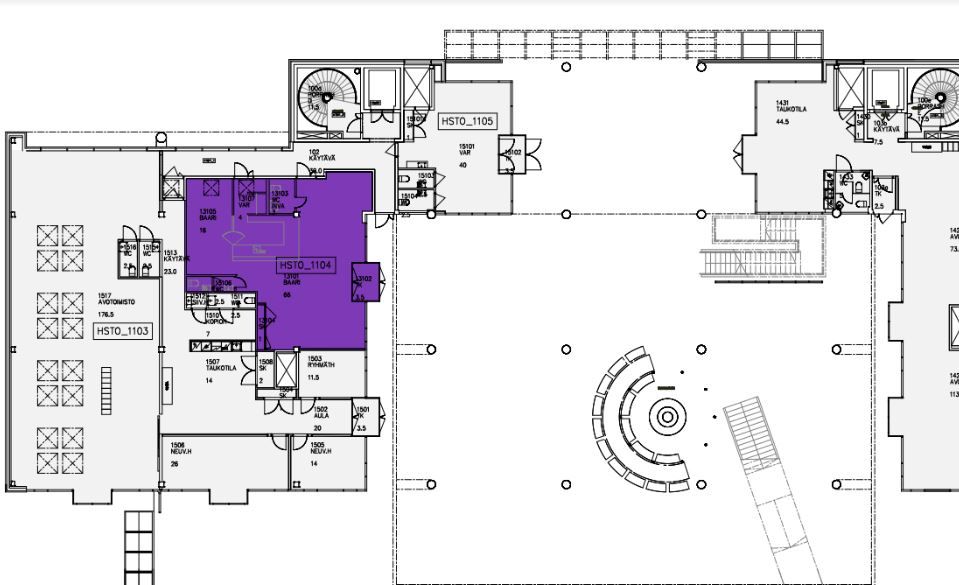
Vuokrattavissa keskeiseltä paikalta Pasilassa liiketila/toimisto, ei ruuanvalmistus mahdollisuutta, joten tila ei sovellu ravintolatilaksi. Tila sijaitsee vilkkaan Ratavartijankadun varrella, myymälätilojen vieressä.
Lisätietoja 020 7290 710, lisää kohteita www.premises.fi
Kohteella ei ole lain edellyttämää energiatodistusta.Kerros: 1
Osoite
Ratavartijankatu 3, 00101 Helsinki
Tilatyyppi
Toimistotilaa
99,5 m2
Liiketilaa
99,5 m2
Yhteensä
99,5 m2
Ota yhteyttä
CRE PREMISES
Puh. Näytä puhelinnumero 020 7290 710
Vantaankoskentie 14
01670 VANTAA
Pyydä lisätietoa
