Vuokrataan toimistotilat - Helsinki
Malminkaari 9, Malmi, 00700 Helsinki #10753193
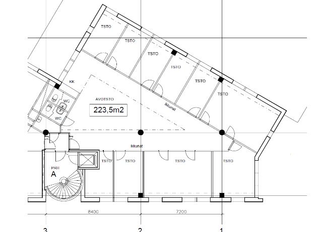
Vuokrattavana hyväkuntoista ja helposti muunneltavissa olevaa toimistotilaa.
Osoite
Malminkaari 9, 00700 Helsinki
Tilatyyppi
Toimistotilaa
223,5 m2
Kiinteistö
Vuokrattavana hyväkuntoista ja helposti muunneltavissa olevaa toimistotilaa. Tila koostuu sekä huoneista, että avotilasta.
Sijainti
Malmi, Helsinki
Pysäköinti
Autopaikkoja vuokrattavissa pihalta sekä viereisestä parkkitalosta.
Pihalta löytyy myös asiakaspaikoitus.
Pihalta löytyy myös asiakaspaikoitus.
Palvelut
Lähialueen palvelut.
Kulkuyhteydet
-Juna
-Bussi
-Oma auto
-Bussi
-Oma auto
Vapautuu
Heti
Kerros
3
Energiatehokkuusluokka
Ei lain edellyttämää energiatodistusta
Näkyvällä paikalla
Hissi
Ota yhteyttä
REALIUM OY LKV
Tammasaarenkatu 1, 00180 Helsinki
Vaihde:
Näytä puhelinnumero
010 326 346
Tuomo Mäkelä
tuomo.makela@realium.fi
p.
Näytä puhelinnumero
044 050 1158
Joel Keto
joel.keto@realium.fi
p.
Näytä puhelinnumero
045 317 0330
KAIKKI TILAVAIHTOEHDOT KERRALLA!
SOITA - MEILAA JA TILAA NÄYTTÖ!
Ilmainen palvelu tilanhakijoille.
Kartoitamme parhaat tilavaihtoehdot.
Kaikki kohteet eivät ole netissä.
Pyydä lisätietoa
