Myydään liiketilat, muut tilat - Kuopio
Petäjälahdentie 11, 73310 Kuopio #10753167
MYYDÄÄN MAJOITUSKIINTEISTÖ UPEISSA JÄRVENRANTAMAISEMISSA! Tarjousten perusteella
Osoite
Petäjälahdentie 11, 73310 Kuopio
Tilatyyppi
Liiketilaa
700 m2
Muuta tilaa
700 m2
Yhteensä
700 m2
Myyntihinta
Myydään tarjousten perusteella
Muuta
Nilsiässä Tahkovuoren Nipasen alueella on myynnissä hyvä sijoituskohde, lomanviettopaikka yritykselle tai miksei vaikka unelmahuvila isolle perheelle! Upea, kutsuvan keltainen majoituskiinteistö odottaa uutta omistajaa aivan Petäjälahden rannalla upeissa luonnonmaisemissa.
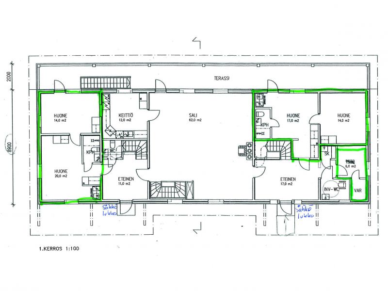
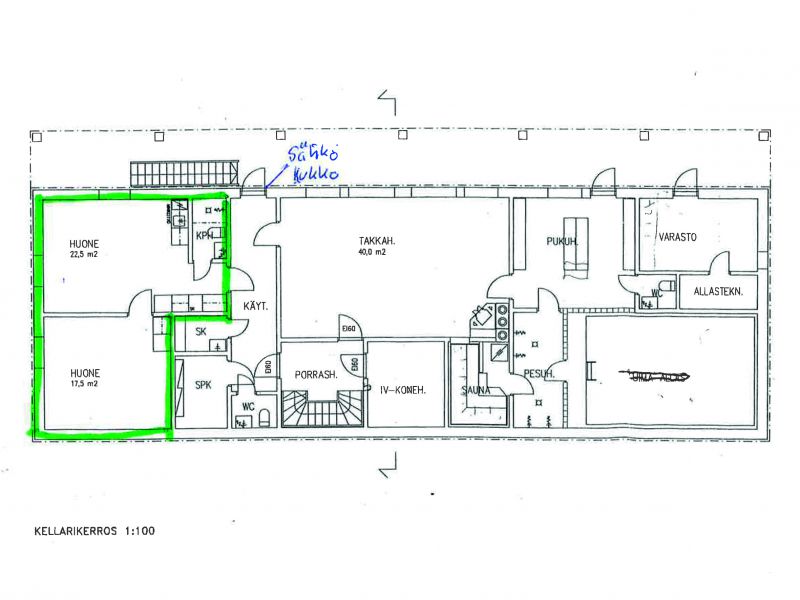
Loivassa rinteessä sijaitsevassa päärakennuksessa on viisi kahden huoneen lomahuoneistoa sekä kaksi pienempää majoitushuonetta, joissa kaikissa on oma minikeittiö ja kylpyhuone. Kellarikerroksessa on yhteiskäytössä oleva takkahuone ja sauna pesutiloineen, ensimmäisessä kerroksessa sali/kokoustila ja keittiö. Kaikkiaan rakennuksessa on noin 650 neliötä.
Tontilla on lisäksi hyvin varusteltu kuuden hengen rantamökki, jossa on oma sauna.
Vuonna 2007 valmistuneet rakennukset ovat hyvässä kunnossa.
Tahkovuoren rinteisiin on kolmen kilometrin matka. Vanha golfkenttä sijaitsee kahden kilometrin ja uusi kenttä vain kilometrin päässä. Nilsiän keskustaan ajaa noin kymmenessä minuutissa.
ERINOMAINEN TUOTTOPOTENTIAALI SIJOITTAJALLE!
KOHDETIEDOT
SIJAINTI
Katuosoite: Petäjälahdentie 11, 73310 Kuopio
Kaupunginosa: Nilsiä, Tahkovuori
Ympäristö: Luonnonmaisemaa, järvenranta, lomamökkejä
TONTTI
Pinta-alat: 5’565 m²
Omistusmuoto: Oma
Kiinteistötunnus: 297-499-40-14
RAKENNUS/HUONEISTO
Pinta-alat: Päärakennus noin 650 m², rantamökki noin 50 m²
Huoneistotyyppi/Käyttötarkoitus: Majoitusrakennus
Rakennusvuosi: 2007
Kunto, varusteet ja palvelut: Hyvä kunto, Tahkovuoren ja Nilsiän keskustan palvelut
Lämmitys: Suora sähkölämmitys, neljä ilmalämpöpumppua, kaksi takkaa
MYYNTIHINTA
Myyntihinta: Myydään tarjousten perusteella
Loivassa rinteessä sijaitsevassa päärakennuksessa on viisi kahden huoneen lomahuoneistoa sekä kaksi pienempää majoitushuonetta, joissa kaikissa on oma minikeittiö ja kylpyhuone. Kellarikerroksessa on yhteiskäytössä oleva takkahuone ja sauna pesutiloineen, ensimmäisessä kerroksessa sali/kokoustila ja keittiö. Kaikkiaan rakennuksessa on noin 650 neliötä.
Tontilla on lisäksi hyvin varusteltu kuuden hengen rantamökki, jossa on oma sauna.
Vuonna 2007 valmistuneet rakennukset ovat hyvässä kunnossa.
Tahkovuoren rinteisiin on kolmen kilometrin matka. Vanha golfkenttä sijaitsee kahden kilometrin ja uusi kenttä vain kilometrin päässä. Nilsiän keskustaan ajaa noin kymmenessä minuutissa.
ERINOMAINEN TUOTTOPOTENTIAALI SIJOITTAJALLE!
KOHDETIEDOT
SIJAINTI
Katuosoite: Petäjälahdentie 11, 73310 Kuopio
Kaupunginosa: Nilsiä, Tahkovuori
Ympäristö: Luonnonmaisemaa, järvenranta, lomamökkejä
TONTTI
Pinta-alat: 5’565 m²
Omistusmuoto: Oma
Kiinteistötunnus: 297-499-40-14
RAKENNUS/HUONEISTO
Pinta-alat: Päärakennus noin 650 m², rantamökki noin 50 m²
Huoneistotyyppi/Käyttötarkoitus: Majoitusrakennus
Rakennusvuosi: 2007
Kunto, varusteet ja palvelut: Hyvä kunto, Tahkovuoren ja Nilsiän keskustan palvelut
Lämmitys: Suora sähkölämmitys, neljä ilmalämpöpumppua, kaksi takkaa
MYYNTIHINTA
Myyntihinta: Myydään tarjousten perusteella
Ota yhteyttä
Tilat.fi
KTM, LKV Antti Soivio
Näytä puhelinnumero
0400 446 553
OTM, LKV Riikka Tuominen
Näytä puhelinnumero
0400 551 790
KTM, LKV Maria-Sofia Puhakka
Näytä puhelinnumero
0400-150330
Yrityksen virallinen nimi: LKV Toimitilaa.fi Oy. Toimitilojen välitykseen erikoistunut yritys.
http://www.tilat.fiPyydä lisätietoa
