Vuokrataan toimistotilat - Helsinki
Valimotie 9-11, Pitäjänmäki, 00380 Helsinki #10753085
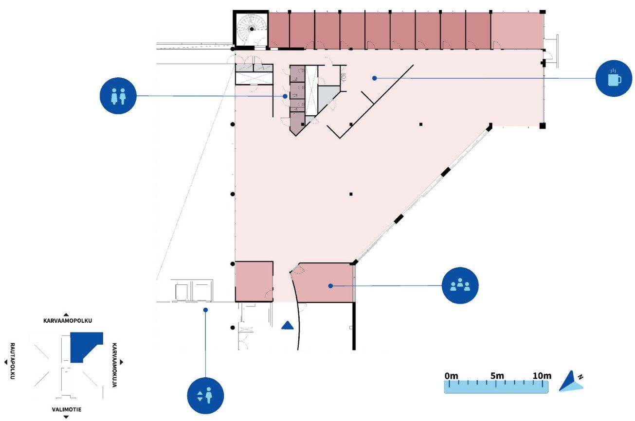
Nämä siistit toisen kerroksen tilat tarjoavat hyvät puitteet työskentelylle. Tilasta löytyy avokonttoria, jossa tehokas kommunikointi kollegoiden kanssa onnistuu, työhuoneita itsenäiseen työskentelyyn sekä neuvotteluhuoneita tapaamisia varten. Työskentelytiloja täydentämässä ovat oma taukotila keittiöineen ja omat wc-tilat. Tässä toimistohoneistossa sujuu varmasti pidempikin työpäivä. Tiloja voidaan muokata vastaamaan paremmin tarpeisiinne.
Valimotie 9-11 tarjoaa moderneja, edustavia toimistotiloja eri kokoisille yrityksille. Kiinteistöltä löytyy kattava määrä palveluita mukaan lukien lounasraintola, catering- ja kokouspalvelut, aulapalvelu sekä saunatilat edustustilaisuuksia varten.
Croisette on uusi ja innovatiivinen toimitilojen välitysyritys Suomessa. Meillä on vahva halu auttaa teitä löytämään paras toimitilaratkaisu mahdollisimman vaivattomasti.
Huomaathan, että kaikki vapaat ja vapautuvat tilat ovat kauttamme saatavilla. Osa tiloista on hiljaisessa markkinoinnissa, mutta ottamalla meihin yhteyttä saat nekin tietoosi.
Palvelumme on tilanhakijoille täysin maksutonta.
Hissi
Croisette Real Estate Partner
Erottajankatu 5 A 6, 00130 Helsinki
Näytä puhelinnumero
+358 400 585 857
Croisette Vuokraus
Näytä puhelinnumero
+358400585857
