Vuokrataan toimistotilat - Helsinki
M117, Mannerheimintie 117, Ruskeasuo, 00280 Helsinki #10753052
Moderni, juuri teitä varten rakennettava n. 500 m² toimistotila Ruskeasuolla.
Osoite
Mannerheimintie 117, 00280 Helsinki
Tilatyyppi
Toimistotilaa
500 m2
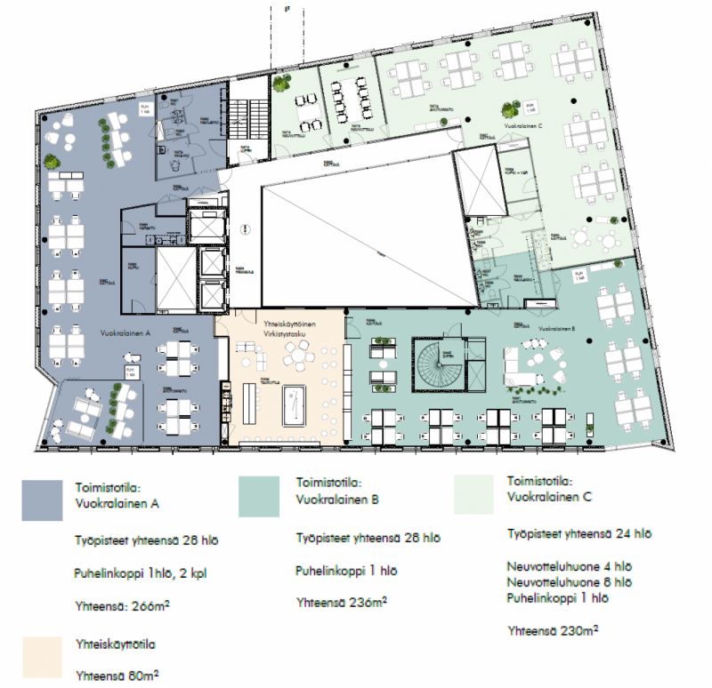
Pohjapiirros
Kiinteistö
M117 tarjoaa yrityksellesi modernit, muuntojoustavat tilat, jotka suunnitellaan palvelemaan juuri teidän tarpeitanne. Oma monitilatoimistosi tukee prosessejanne ja työyhteisönne tuottavuutta ja hyvinvointia. Viihtyisät ja toimivat yleiset tilat ja sen tarjoamat palvelut sujuvoittavat arkeasi.
Kerroksen koko on n. 850 m², ja kerros on jaettavissa jopa kolmelle yritykselle.
M117 on toimistotalo, jolla on loistava sijainti Mannerheimintien päässä, Keskuspuiston kupeessa. Tänne pääsee helposti monesta suunnasta ja monenlaisella kulkuvälineellä. Hektiseen työpäivään voit täällä helposti myös upottaa palauttavan hetken luonnossa. M117 on uudistettu ihmiskeskeisesti hyvinvointia tukevaksi, WELL-sertifikaatin kriteerien mukaisesti.
Talossa on ravintola, neuvottelutiloja, auto- ja polkupyöräpaikoitus, kuntosali sekä terassi.
Uudistuneen M117:n vehreä ja eläväinen aula vastaanottoineen toivottaa niin talon käyttäjät kuin vieraatkin tervetulleeksi. Aulan viihtyisillä istuinryhmillä voit halutessasi työskennellä tai pitää vapaamuotoisia palavereita ja samalla nauttia lounaskahvilan tuoreista antimista.
Haluamme auttaa sinua pitämään työn ja muun elämän tasapainossa. Peruspalveluiden lisäksi yhteistyökumppaniemme lisäpalvelut sujuvoittavat arkeasi. Miltä kuulostaisivat vaikkapa pesula- tai kauppakassipalvelut?
M117:n uudistamisessa on noudatettu WELL-sertifikaatin kriteerejä, eli rakennuksen suunnittelussa ihmisten hyvinvoinnin tukeminen on otettu monin eri tavoin systemaattisesti huomioon.
Talon yhteiskäyttöiset neuvotteluhuoneet ovat kaikki erilaisia. Teemoitetut neuvotteluhuoneet innostavat ja luovat neuvottelulle oman tunnelman. Yhteiskäyttöisiä neuvotteluhuoneita on yhteensä seitsemän, joista yksi on iso monitoimitila.
Kohdetta palvelevat Mannerheimintietä ja Hakamäentietä / Vihdintietä pitkin menevät bussilinjat. Kympin ratikan päätepysäkille on noin 10 minuutin kävelymatka ja Ilmalan juna-asemallekaan ei ole kuin reilu kilometri. Autolla pääset Kehä I:lle viidessä minuutissa, Turun väylän alkuun vajaassa kymmenessä ja lentokentälle 20 minuutissa.
Pyörällä työmatkansa kulkeville M117 on loistava kohde, ympäri vuoden. M117:lle johtaa hyvät kevyen liikenteen väylät kaikista pääilmansuunnista ja niitä pidetään erinomaisessa kunnossa myös talvella niin kaupungin kuin Keskuspuiston puolella. M117:ssa on myös hyvät tilat pyörien säilytykseen.
Kerroksen koko on n. 850 m², ja kerros on jaettavissa jopa kolmelle yritykselle.
M117 on toimistotalo, jolla on loistava sijainti Mannerheimintien päässä, Keskuspuiston kupeessa. Tänne pääsee helposti monesta suunnasta ja monenlaisella kulkuvälineellä. Hektiseen työpäivään voit täällä helposti myös upottaa palauttavan hetken luonnossa. M117 on uudistettu ihmiskeskeisesti hyvinvointia tukevaksi, WELL-sertifikaatin kriteerien mukaisesti.
Talossa on ravintola, neuvottelutiloja, auto- ja polkupyöräpaikoitus, kuntosali sekä terassi.
Uudistuneen M117:n vehreä ja eläväinen aula vastaanottoineen toivottaa niin talon käyttäjät kuin vieraatkin tervetulleeksi. Aulan viihtyisillä istuinryhmillä voit halutessasi työskennellä tai pitää vapaamuotoisia palavereita ja samalla nauttia lounaskahvilan tuoreista antimista.
Haluamme auttaa sinua pitämään työn ja muun elämän tasapainossa. Peruspalveluiden lisäksi yhteistyökumppaniemme lisäpalvelut sujuvoittavat arkeasi. Miltä kuulostaisivat vaikkapa pesula- tai kauppakassipalvelut?
M117:n uudistamisessa on noudatettu WELL-sertifikaatin kriteerejä, eli rakennuksen suunnittelussa ihmisten hyvinvoinnin tukeminen on otettu monin eri tavoin systemaattisesti huomioon.
Talon yhteiskäyttöiset neuvotteluhuoneet ovat kaikki erilaisia. Teemoitetut neuvotteluhuoneet innostavat ja luovat neuvottelulle oman tunnelman. Yhteiskäyttöisiä neuvotteluhuoneita on yhteensä seitsemän, joista yksi on iso monitoimitila.
Kohdetta palvelevat Mannerheimintietä ja Hakamäentietä / Vihdintietä pitkin menevät bussilinjat. Kympin ratikan päätepysäkille on noin 10 minuutin kävelymatka ja Ilmalan juna-asemallekaan ei ole kuin reilu kilometri. Autolla pääset Kehä I:lle viidessä minuutissa, Turun väylän alkuun vajaassa kymmenessä ja lentokentälle 20 minuutissa.
Pyörällä työmatkansa kulkeville M117 on loistava kohde, ympäri vuoden. M117:lle johtaa hyvät kevyen liikenteen väylät kaikista pääilmansuunnista ja niitä pidetään erinomaisessa kunnossa myös talvella niin kaupungin kuin Keskuspuiston puolella. M117:ssa on myös hyvät tilat pyörien säilytykseen.
Vapautuu
Heti
Rakennusvuosi
2012
Saneerausvuosi
2020
Energiatehokkuusluokka
Ei lain edellyttämää energiatodistusta
Ympäristöluokitus
LEED Platinum
Näkyvällä paikalla
Hissi
Ota yhteyttä
ScanReal Oy LKV
Opus Business Park
Hitsaajankatu 24
00810 Helsinki
info@scanreal.fi
Puh:
Näytä puhelinnumero
020 730 8830
Sopivat toimitilat yhdellä otolla!
Kartoitamme toimitilatarpeesi ja etsimme yrityksellesi parhaiten sopivat vapaat toimitilat. Koska vuokranantajat maksavat palvelumme, on tämä yrityksellesi veloituksetonta.
OTA YHTEYTTÄ - SOVI NÄYTTÖ!
Kaikki kohteemme eivät ole netissä, kerro tilatarpeesi niin kartoitamme vaihtoehdot.
Palvelumme on tilanhakijalle ilmainen
Pyydä lisätietoa
