Vuokrataan - Helsinki
Atomitie 5, Pitäjänmäki, 00370 Helsinki #10753016
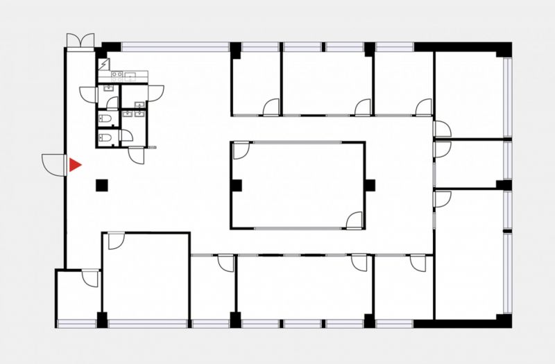
Vuokrataan valoisa, kolmannen kerroksen rakennuksen etukulmassa sijaitseva 319m2 toimistotila, joka nykymuodossaan tarjoaa työpisteet n. 15-20 henkilön organisaatiolle omissa tai jaetuissa työhuoneissa. Tätä toimitilaa voidaan muokata, eli haluttaessa esimerkiksi osa tiloista voidaan muuttaa avotyötilaksi. Tila voidaan myös yhdistää viereisten tilojen kanssa. Kiinteistö sijaitsee hyvien liikenneyhteyksien äärellä, kohteeseen pääset helposti niin autolla kuin julkisilla. Kiinteistössä on aulapalvelu, lounasravintola sekä kokousmaailma. Kiinteistön pysäköintitalosta on vuokrattavissa parkkipaikkoja.
Kysy lisää Jouko Raitanen Helsinki puh. 0504695444
RHG Real Estate
Hämeenkatu 2 B20, 20500 Turku
Näytä puhelinnumero
020 734 4020
Jouko Raitanen
Näytä puhelinnumero
050 469 5444
