Vuokrataan liiketilat - Jyväskylä
Yliopistonkatu 32, 40100 Jyväskylä #10753011
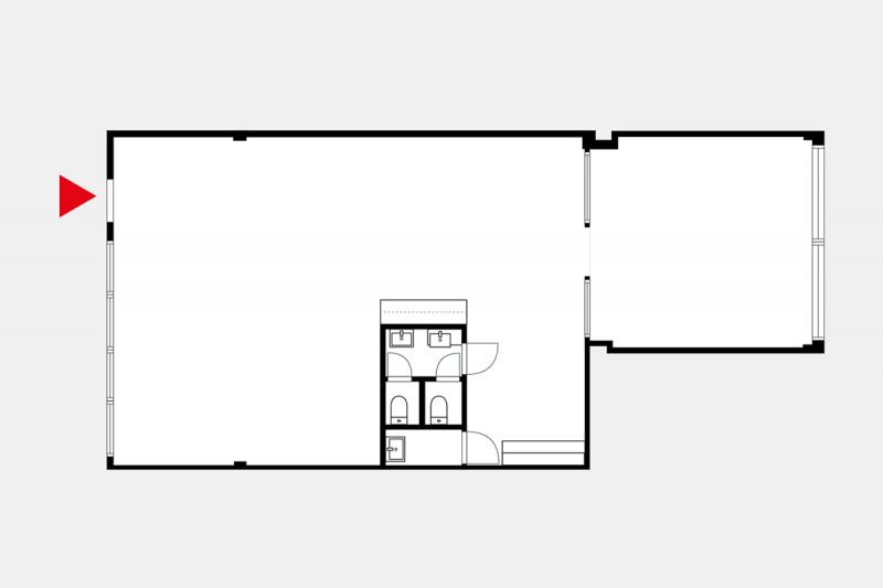
Torikulmasta avara ja valoisa liiketila katutasosta. Yliopistonkadun puolen sisääntulosta tultaessa tilaan on sisäänkäynti esteetön. Liiketilassa liukuovet ja näkyvää ikkunapintaa Asemakadun puolella sekä sisäkäytävälle. Liiketila remontoidaan vuokralaisen tarpeita vastaavaksi mm. uusi keittiö sekä wc-tilat rakennetaan. Myös muita muutoksia tilaan voidaan tehdä mm. tehdä erillisiä huoneita tai neuvottelutiloja. Tila on heti vapaa.
Torikulma on viihtyisä ostospaikka joka on peruskorjattu vuonna 2000. Vuokralaisina on mm. suosittu Miriam`s kahvila, POP Pankki, Handelsbanken, Sinun Kauneus, Koto Desingmarket ja Keski-Suomen Hyvinvointipalveluja.
Soita ja sovi tarkemmin kohteen näytöstä, kaupalliselle managerille 0505417349 Minna Moisio.
Handelsbanken Jyväskylä
Järvi-Suomen Osuuspankki POP-pankki
Koto Designmarket
Kauneushoitola Sinun Kauneus
Parturi-kampaamo Salon-Studio M
Go On Finland Oy
Keski- Suomen hyvinvointialue:
Keskustan äitiys- ja lastenneuvola
Puheterapia
Fysioterapia
Katutasossa
Näkyvällä paikalla

Fine LKV
Minna Moisio
Toimitilavuokraus, LKV
Näytä puhelinnumero
0505417349
minna@finelkv.fi
Leväsentie 2, 70700 Kuopio
Yliopistonkatu 28, 40100 Jyväskylä
Toimin kaupallisena managerina ja toimitilavuokraajana, otathan yhteyttä jos mietit mahdollisia muutostöitä tai esillä olevista toimitiloista ei löydy sitä mitä etsit. Selvitetään muut tila mahdollisuudet. Asiakaslähtöisyys on minulle tärkeää sekä asioiden sujuvuus. Ota yhteyttä, mielelläni autan sinua.