Vuokrataan liiketilat - Jyväskylä
Yliopistonkatu 28, 40100 Jyväskylä #10752999
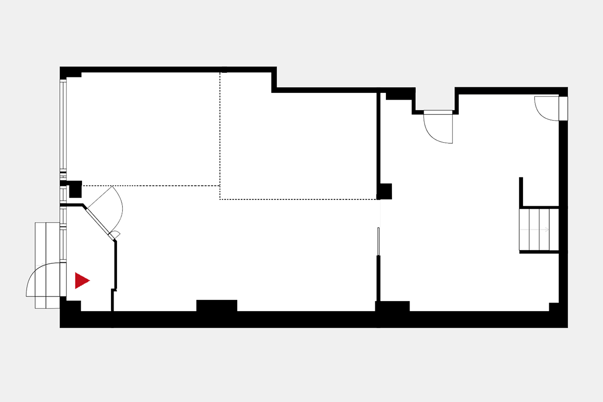
Vilkas liikenteisen Yliopistonkadun varrelta katutason liiketila 123m2. Liiketilan etuosa on avointa tilaa, jonka yhteydessä on pieni toimisto, tilava varastohuone ja takatila. Tila nousee puolikerrosta ylemmäs, siellä wc-tila, pieni keittiö ja neuvottelutila. Kadun varressa on asiakaspysäköintitilaa.
Vuokralaiset voivat käyttää kiinteistön 5. kerroksen neuvottelutiloja ja saunatiloja varauskalenterin mukaan. Tilan käyttö on ilmaista. Keskustan kahvilat ja ruokapaikat on läheisyydessä ja muut monipuoliset palvelut.
Mahdollisuus vuokrata autopaikka. Tila vapautuu 28.2.2026. Soita minulle kohteen lisätiedoista ja muista vapaista tiloista.
Katutasossa
Näkyvällä paikalla
Hissi

Fine LKV
Minna Moisio
Toimitilavuokraus, LKV
Näytä puhelinnumero
0505417349
minna@finelkv.fi
Leväsentie 2, 70700 Kuopio
Yliopistonkatu 28, 40100 Jyväskylä
Toimin kaupallisena managerina ja toimitilavuokraajana, otathan yhteyttä jos mietit mahdollisia muutostöitä tai esillä olevista toimitiloista ei löydy sitä mitä etsit. Selvitetään muut tila mahdollisuudet. Asiakaslähtöisyys on minulle tärkeää sekä asioiden sujuvuus. Ota yhteyttä, mielelläni autan sinua.