Vuokrataan toimistotilat - Helsinki
Vattuniemenranta 2, 00210 Helsinki #10752421
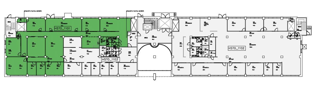
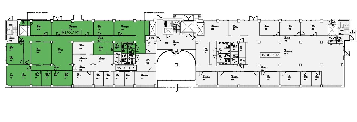
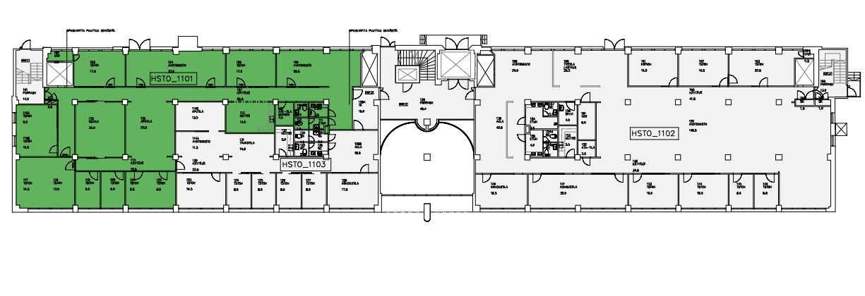
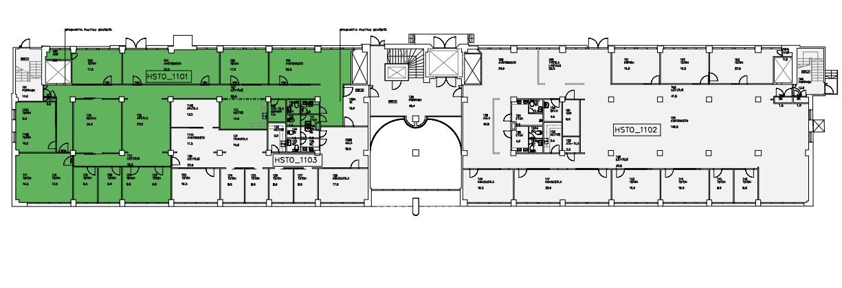
Vuokrattavana ensimmäisen kerroksen avo-/ huonetoimistotila Lauttasaaressa 339 m2. Jäähdytetty tila.
Kiinteistössä palvelee oma lounasravintola, lisäksi lähialueella muita lounaspaikkoja. Autopaikkoja on vuokrattavana kiinteistön pihalla. Mahdollista myös vuokrata varastotilaa toimiston yhteyteen, kuten 30, 37 tai 77 m2 kokoisina.
Lisätietoja numerosta 020 7290 710. Lisää kohteita osoitteessa www.premises.fi.
Energialuokka F.Kerros: 1
Osoite
Vattuniemenranta 2, 00210 Helsinki
Tilatyyppi
Toimistotilaa
339 m2
Kulkuyhteydet
Lauttasaareen hyvät linja-autoyhteydet. Läheinen Länsiväylä takaa sujuvat yhteydet Helsingin keskustaan ja Espoon suuntaan.
Ota yhteyttä
CRE PREMISES
Puh. Näytä puhelinnumero 020 7290 710
Vantaankoskentie 14
01670 VANTAA
Pyydä lisätietoa
