Vuokrataan toimistotilat - Helsinki
Valimotie 1, Pitäjänmäki, 00380 Helsinki #10751735
Toimistotilaa hyvällä sijainnilla Helsingin Pitäjänmäellä.
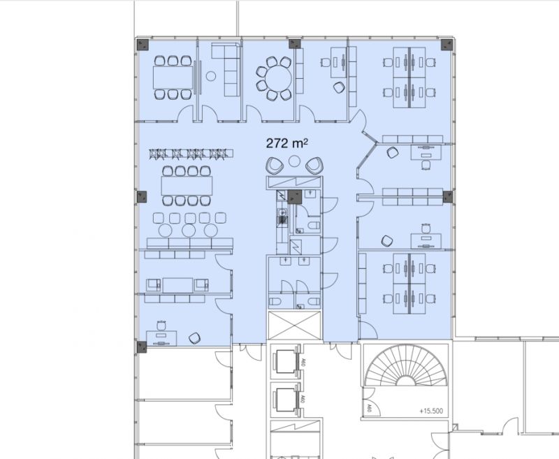
Kyseinen 546 m² toimisto sijaitsee kiinteistön 2. kerroksessa. Toimisto on huoneellinen, ja siihen kuuluvat omat keittiö- ja wc-tilat. Koko kerros jaettavissa 3-4 käyttäjälle: 273 m², 546 m², 818 m² ja 1091 m² osiin. Kuvat ovat yleis- ja havainnekuvia kiinteistön tiloista.
Valimotie 1 on toimitilakiinteistö, joka sijaitsee Helsingin Pitäjänmäen yritysalueella. Kiinteistö tarjoaa yritykselle tehokkaat ja muuntojoustavat toimistotilat kaikkiin tarpeisiin. Rakennuksen julkisivu uudistettiin vuonna 2010. Kaikkiin kerroksiin on henkilö- ja tavarahissiyhteys. Lisäksi kellarikerroksessa on varastotiloja, sekä sosiaalitilat naisille ja miehille. Kiinteistölle on helppo saapua ja parkkitilaa löytyy runsaasti.
Kysy lisää numerosta 044 723 4700 tai info@bref.fi. Palvelumme on tilanhakijoille ilmainen.
Hissi
Bureau Real Estate Finland Oy
Lars Sonckin kaari 16, 02600 Espoo
Näytä puhelinnumero
0447234700
Bureau Real Estate Finland Oy
https://www.bref.fi