Vuokrataan toimistotilat - Helsinki
Koskelantie 5, Käpylä, 00610 Helsinki #10751509
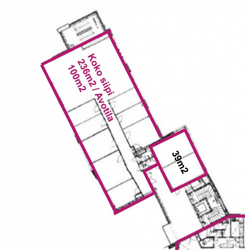
Siisti, saneeraattu 236 m² toimistotila paraatipaikalla Käpylässä!
Osoite
Koskelantie 5, 00610 Helsinki
Tilatyyppi
Toimistotilaa
236 m2
Pohjapiirros
Vuokra
2950 € / kk + alv
Kiinteistö
Siistiä toimistotilaa hyvien yhteyksien äärellä tarjolla Käpylän palveluiden läheisyydessä.
Tässä 236 m² siivessä on avotilaa n. 100 m² sekä 8 kpl erikokoista työhuonetta.
Kiinteistö on aikaisemmin ollut yhden käyttäjän kiinteistö joka nyt vuokrataan kokonaisuudessaan niin pieneen kuin isoon tilantarpeeseen erittäin joustavin sopimusehdoin.
Koskelantie 5 kiinteistössä on auditorio, tapahtumatila, saunaosasto, neuvottelutilat, oma parkkihalli sekä ravintolatila katutasossa!
Kohteessa ei vaadita vuokravakuutta.
Pysäköintihalli 100€ / kk + alv/ paikka.
Alueen kaduilla ilmainen pysäköinti.
Toimitilavuokraan lisätään sähkömaksu 1,00 € / m² / kk + alv
Tässä 236 m² siivessä on avotilaa n. 100 m² sekä 8 kpl erikokoista työhuonetta.
Kiinteistö on aikaisemmin ollut yhden käyttäjän kiinteistö joka nyt vuokrataan kokonaisuudessaan niin pieneen kuin isoon tilantarpeeseen erittäin joustavin sopimusehdoin.
Koskelantie 5 kiinteistössä on auditorio, tapahtumatila, saunaosasto, neuvottelutilat, oma parkkihalli sekä ravintolatila katutasossa!
Kohteessa ei vaadita vuokravakuutta.
Pysäköintihalli 100€ / kk + alv/ paikka.
Alueen kaduilla ilmainen pysäköinti.
Toimitilavuokraan lisätään sähkömaksu 1,00 € / m² / kk + alv
Vapautuu
Heti
Rakennusvuosi
1983
Kerros
3
Energiatehokkuusluokka
Ei lain edellyttämää energiatodistusta
Näkyvällä paikalla
Hissi
Ota yhteyttä
ScanReal Oy LKV
Opus Business Park
Hitsaajankatu 24
00810 Helsinki
info@scanreal.fi
Puh:
Näytä puhelinnumero
020 730 8830
Sopivat toimitilat yhdellä otolla!
Kartoitamme toimitilatarpeesi ja etsimme yrityksellesi parhaiten sopivat vapaat toimitilat. Koska vuokranantajat maksavat palvelumme, on tämä yrityksellesi veloituksetonta.
OTA YHTEYTTÄ - SOVI NÄYTTÖ!
Kaikki kohteemme eivät ole netissä, kerro tilatarpeesi niin kartoitamme vaihtoehdot.
Palvelumme on tilanhakijalle ilmainen
Pyydä lisätietoa
