Vuokrataan toimistotilat - Helsinki
Tietokuja 2, Munkkiniemi, 00330 Helsinki #10751172
Tietokuja 2, BLU Helsinki
Tämä ikoninen pääkonttorikiinteistö on päivitetty kohti energiatehokasta, hybridityöskentelyyn soveltuvaa, huikeat palvelut tarjoavaa toimitilakiinteistöä. Laadukkaan toimistoympäristön täydentävät neuvottelualue, catering- ja vastaanottopalvelut, arvostettu ravintola sekä alueen erinomaiset liikuntamahdollisuudet.
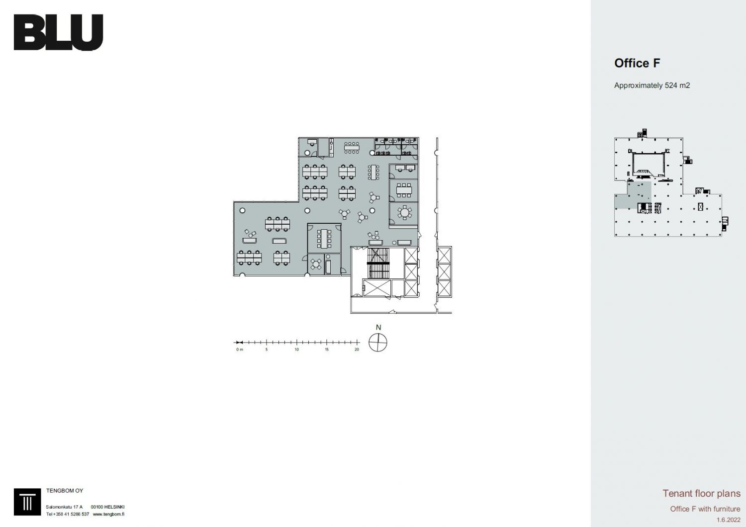
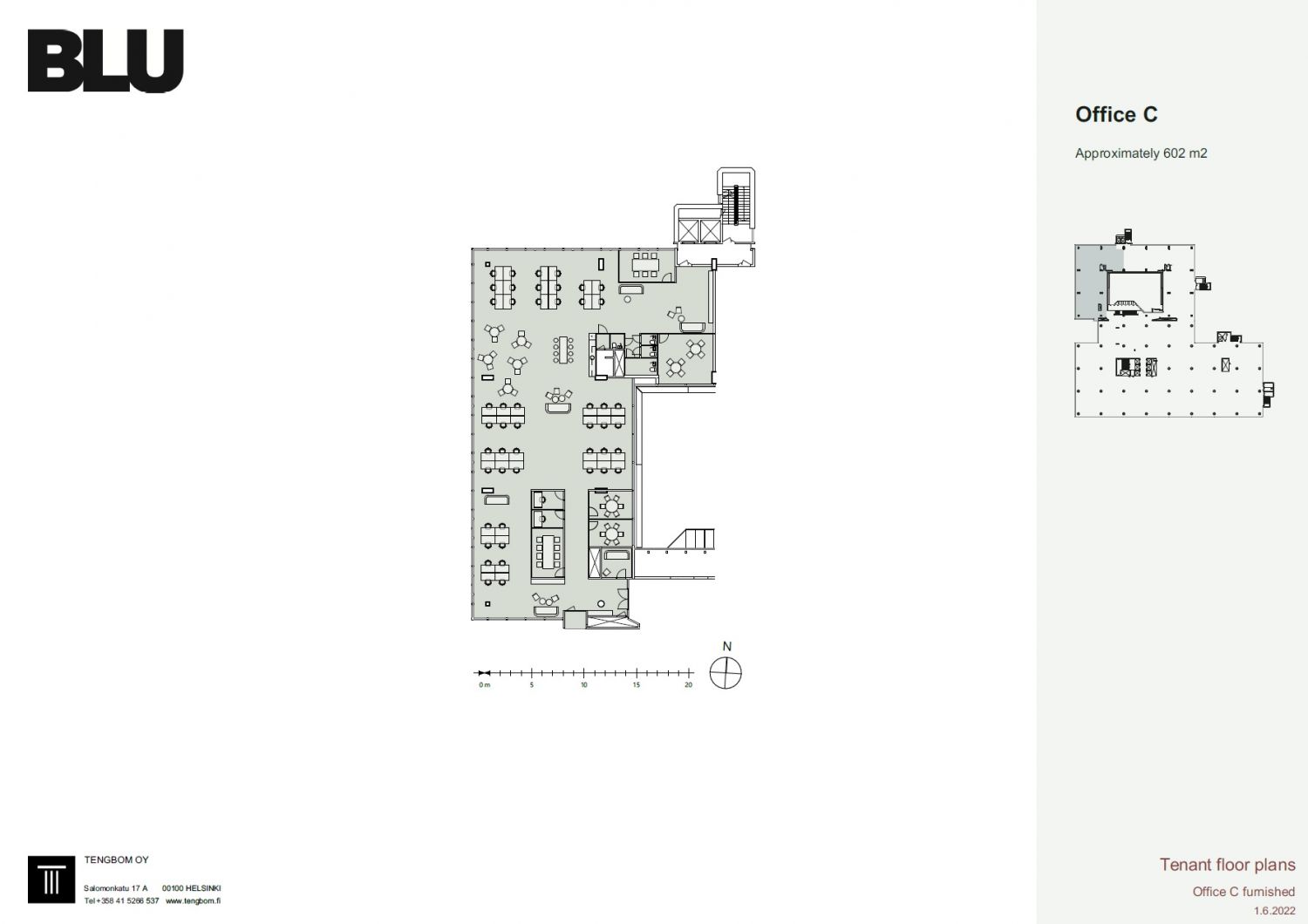
Toimistoja on saatavilla mm. 524 m2, 602 m2, 751 m2 ja 1204 m2, kysythän rohkeasti niin annamme lisätietoja.
BLU sijaitsee vehreällä ja luonnonkauniilla, arvostetulla Munkkiniemen alueella, johon on helppo tulla pääkaupunkiseudun asuinalueilta ja lentokentältä. Työmatkansa pyörällä taittavat arvostavat sijaintia, jonka varrelle osuu yksi parhaista ja kauneimmista pyöräreiteistä – kenties se saa monen autoilijankin harkitsemaan työmatkapyöräilyä. Helsingin keskustaan on lyhyt matka raitiovaunulla tai autolla. BLU tarjoaa reilusti parkkitilaa autoille ja pyörille, auton latauspisteitä sekä peseytymismahdollisuudet työmatkapyöräilijöille.
Henkilöstön hyvinvoinnin lisäksi ympäristön hyvinvointi on ohjannut monia valintoja BLU:ssa. Yksi päätavoitteista on toimistorakennukselle myönnettävän BREEAM Excellent -tunnustuksen saavuttaminen alhaisen energiankulutuksen ansiosta. Energiajärjestelmät ovat huippuluokkaa ja kiinteistö onkin lämmityksen suhteen 90–100 % omavarainen.
Kysythän meiltä lisätietoja ja mielellämme organisoimme käynnin kiinteistöön.
Croisette on uusi ja innovatiivinen toimitilojen välitysyritys Suomessa. Meillä on vahva halu auttaa teitä löytämään paras toimitilaratkaisu mahdollisimman vaivattomasti.
Huomaathan, että kaikki vapaat ja vapautuvat tilat ovat kauttamme saatavilla. Osa tiloista on hiljaisessa markkinoinnissa, mutta ottamalla meihin yhteyttä saat nekin tietoosi.
Palvelumme on tilanhakijoille täysin maksutonta.
Liitetiedostot
Croisette Real Estate Partner
Erottajankatu 5 A 6, 00130 Helsinki
Näytä puhelinnumero
+358 400 585 857
Croisette Vuokraus
Näytä puhelinnumero
+358400585857
