Vuokrataan toimistotilat - Helsinki
Lampputie 1, Suutarila, 00740 Helsinki #10750911
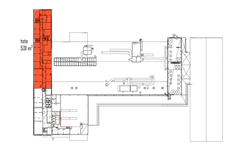
Vuokrattavana modernia toimistotilaa rakennuksen toisesssa kerroksessa.
Osoite
Lampputie 1, 00740 Helsinki
Tilatyyppi
Toimistotilaa
531 m2
Kiinteistö
Vuokrattavana modernia toimistotilaa rakennuksen toisesssa kerroksessa. Saatavilla myös viereiset sosiaalitilat 105 m², merkitty pohjapiirrokseen. Kellarikerroksesta voi vuokrata lisäksi erillisen saunallisen pukuhuonetilan.
Sijainti
Suutarila, Helsinki
Pysäköinti
Runsaat piha-alueet niin varastointiin kuin pysäköintiinkin.
Palvelut
Erinomaiset palvelult lähellä.
Kulkuyhteydet
-Bussi
-Oma auto
-Oma auto
Vapautuu
Heti
Kerros
2
Energiatehokkuusluokka
Ei lain edellyttämää energiatodistusta
Näkyvällä paikalla
Lastauslaituri
Ota yhteyttä
REALIUM OY LKV
Tammasaarenkatu 1, 00180 Helsinki
Vaihde:
Näytä puhelinnumero
010 326 346
Tuomo Mäkelä
tuomo.makela@realium.fi
p.
Näytä puhelinnumero
044 050 1158
Joel Keto
joel.keto@realium.fi
p.
Näytä puhelinnumero
045 317 0330
KAIKKI TILAVAIHTOEHDOT KERRALLA!
SOITA - MEILAA JA TILAA NÄYTTÖ!
Ilmainen palvelu tilanhakijoille.
Kartoitamme parhaat tilavaihtoehdot.
Kaikki kohteet eivät ole netissä.
Pyydä lisätietoa
