Vuokrataan toimistotilat, liiketilat, näyttelytilat, toimistohotelli, muut tilat - Jyväskylä
Polttolinja 21, Kuokkala, 40520 Jyväskylä #10750745
Nyt tarjolla! Edullinen ja siisti toimistotila Kuokkalasta - iso toimisto pienen hinnalla! ✨
Etsitkö fiksua ja kustannustehokasta toimistotilaa?
Polttolinja 21 tarjoaa juuri sitä – hyväkuntoisen, valoisan ja helposti saavutettavan toimiston, jossa työt hoituvat tehokkaasti.
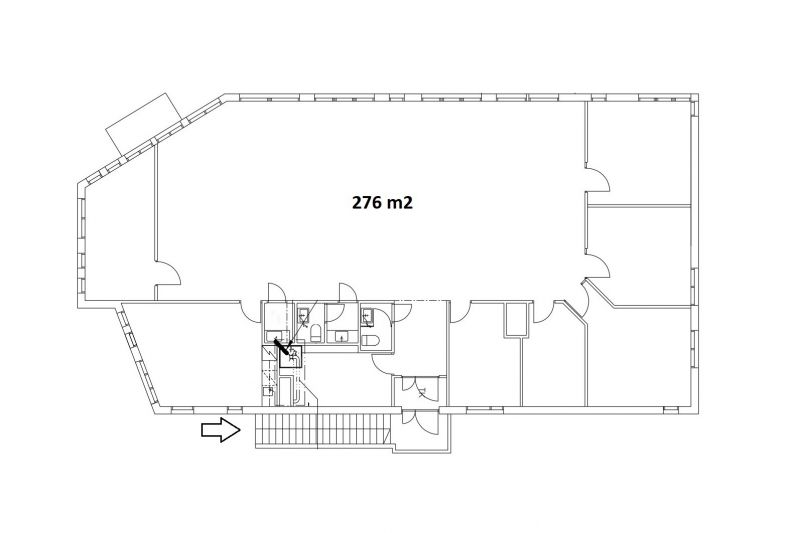
Vuokrataan edullinen toimistoksi ja liiketilaksi soveltuva remontoitu, valoisa ja siisti toimitila, joka koostuu avotoimistosta, viidestä toimisto- / neuvotteluhuoneesta, keittiö- ja taukotilasta sekä sosiaalitiloista. Tilaa on mahdollista muokata käyttäjän tarpeiden mukaan. Kiinteistö sijaitsee Kuokkalan keskustassa näkyvällä paikalla. Tilat on helposti saavutettavissa, Kuokkalan monipuolisten palveluiden äärellä. Kiinteistön pihassa on saatavilla pysäköintipaikkoja.
Pinnat remontoitu!
Mahdollisuus tehdä lisää toimistohuoneita
Atk-verkko
Koneellinen poisto- ja tuloilma jäähdytyksellä
Keskuspölynimuri
Edullinen vuokrataso, 9e / m2 / kk + alv, eli esimerkiksi:
138 m2 = 1242e / kk + alv
276 m2 = 2484e / kk + alv
Lisätiedot ja näytöt: Henri Kumpulainen, Puh: 040 864 3631, s-posti: henri.kumpulainen@aveon.fi
Näkyvällä paikalla
Jaettavissa
Aveon Real Estate Oy
Kauppakatu 18 C 26, 40100 Jyväskylä
Henri Kumpulainen
Puh.
Näytä puhelinnumero
040 864 3631
henri.kumpulainen@aveon.fi
Olemme kiinteistöliiketoiminnan asiantuntija, joka toimii yrittäjämäisesti neuvonantajana kiinteistökaupoissa, toimitilavälittämisessä sekä kiinteistökehityksessä.
Asiakkaitamme ovat kotimaiset ja ulkomaiset kiinteistönomistajat, -sijoittajat sekä tilojen käyttäjät kaikkialla Suomessa.
