Vuokrataan toimistotilat, tuotantotilat, varastotilat - Siikalatva
Muhalantie 8, 92620 Siikalatva #10750725
Hyväkuntoinen 1823 m² teollisuushalli Siikalatvassa
Osoite
Muhalantie 8, 92620 Siikalatva
Tilatyyppi
Toimistotilaa
480 m2
Tuotantotilaa
1343 m2
Varastotilaa
1343 m2
Yhteensä
1823 m2
Kiinteistö
Hyväkuntoinen 1823 m² teollisuuskiinteistö Siikalatvassa
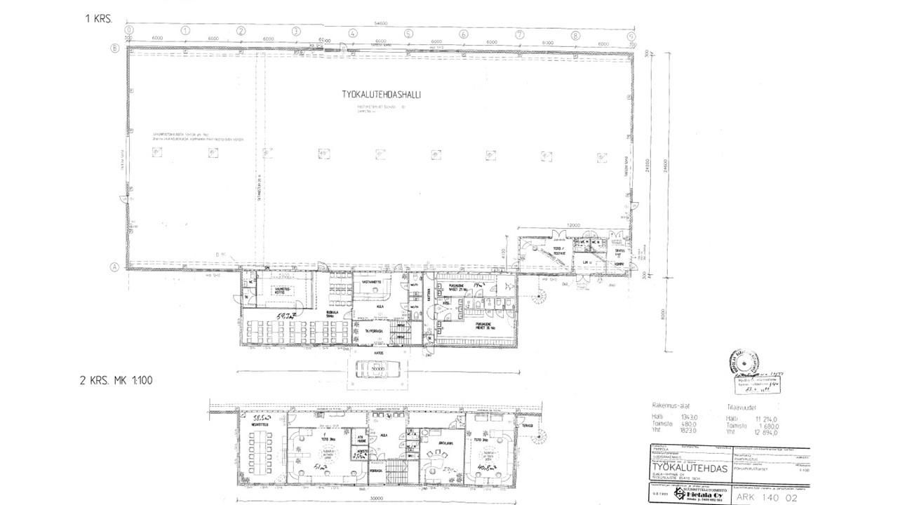
5,4028 hehtaarin tontilla on vuonna 2000 valmistunut Ojala-Yhtymän työvälinetehtaaksi rakennettu 1823 m² teollisuushalli. Rakennuksen ympärillä on iso asfaltoitu piha-alue.
Konepajateollisuuden käyttöön suunnitellussa hallissa lattiarakenteet kestävät raskaankin kaluston käytön. 88-tien vieressä sijaitseva halli on betonirunkoinen ja hallissa oleva Konecranes 10 t siltanosturi kuuluu kauppaan.
Tämä nykyaikainen rakennus sisältää tuotanto-, sosiaali- ja varastotiloja, työmaaruokalan 1. kerroksessa sekä näyttäviä toimisto- ym. aputiloja 2. kerroksessa. Pihalla on toimiston puolella runsaasti parkkipaikkoja sekä 24 lämmityspistoketolppaa. Rakennusoikeutta tontilla on jäljellä n. 1400 m².
Kiinteistö on hyväkuntoinen ja soveltuu monenlaiseen toimintaan, kuten konepajatoimintaan.
Tuotantotilan vapaa korkeus on n. 7 m. Siltanosturin nostokorkeus on n. 5 m.
Sijainti
Siikalatvassa sijaitseva kiinteistö on logistisesti keskeisellä paikalla: Oulusta n. 130 km, Kajaanista n. 90 km, Iisalmesta n. 90 km, Raahesta n. 100 km sekä Kokkolasta n. 160 km.
Tämä monikäyttöinen ja hyväkuntoinen teollisuushalli on erinomainen valinta esimerkiksi konepajatoimintaan tai muuhun teolliseen käyttöön. Ota yhteyttä ja kysy lisää!
5,4028 hehtaarin tontilla on vuonna 2000 valmistunut Ojala-Yhtymän työvälinetehtaaksi rakennettu 1823 m² teollisuushalli. Rakennuksen ympärillä on iso asfaltoitu piha-alue.
Konepajateollisuuden käyttöön suunnitellussa hallissa lattiarakenteet kestävät raskaankin kaluston käytön. 88-tien vieressä sijaitseva halli on betonirunkoinen ja hallissa oleva Konecranes 10 t siltanosturi kuuluu kauppaan.
Tämä nykyaikainen rakennus sisältää tuotanto-, sosiaali- ja varastotiloja, työmaaruokalan 1. kerroksessa sekä näyttäviä toimisto- ym. aputiloja 2. kerroksessa. Pihalla on toimiston puolella runsaasti parkkipaikkoja sekä 24 lämmityspistoketolppaa. Rakennusoikeutta tontilla on jäljellä n. 1400 m².
Kiinteistö on hyväkuntoinen ja soveltuu monenlaiseen toimintaan, kuten konepajatoimintaan.
Tuotantotilan vapaa korkeus on n. 7 m. Siltanosturin nostokorkeus on n. 5 m.
Sijainti
Siikalatvassa sijaitseva kiinteistö on logistisesti keskeisellä paikalla: Oulusta n. 130 km, Kajaanista n. 90 km, Iisalmesta n. 90 km, Raahesta n. 100 km sekä Kokkolasta n. 160 km.
Tämä monikäyttöinen ja hyväkuntoinen teollisuushalli on erinomainen valinta esimerkiksi konepajatoimintaan tai muuhun teolliseen käyttöön. Ota yhteyttä ja kysy lisää!
Vapautuu
Kysy
Siltanosturi
Ota yhteyttä
Logistila Oy
Kiilakiventie 1, 90250 OULU
Sami Karppinen
Näytä puhelinnumero
+358401994722
Pyydä lisätietoa
