Vuokrataan toimistotilat - Espoo
Niittytaival 13, Niittykumpu, 02200 Espoo #10750530
Moderni 628 m² toimisto loistavalla paikalla Länsiväylän varrella
Osoite
Niittytaival 13, 02200 Espoo
Tilatyyppi
Toimistotilaa
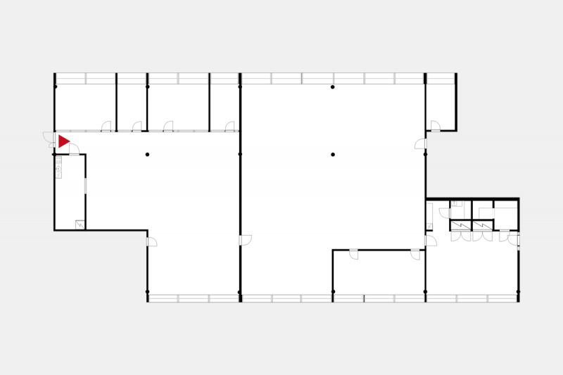
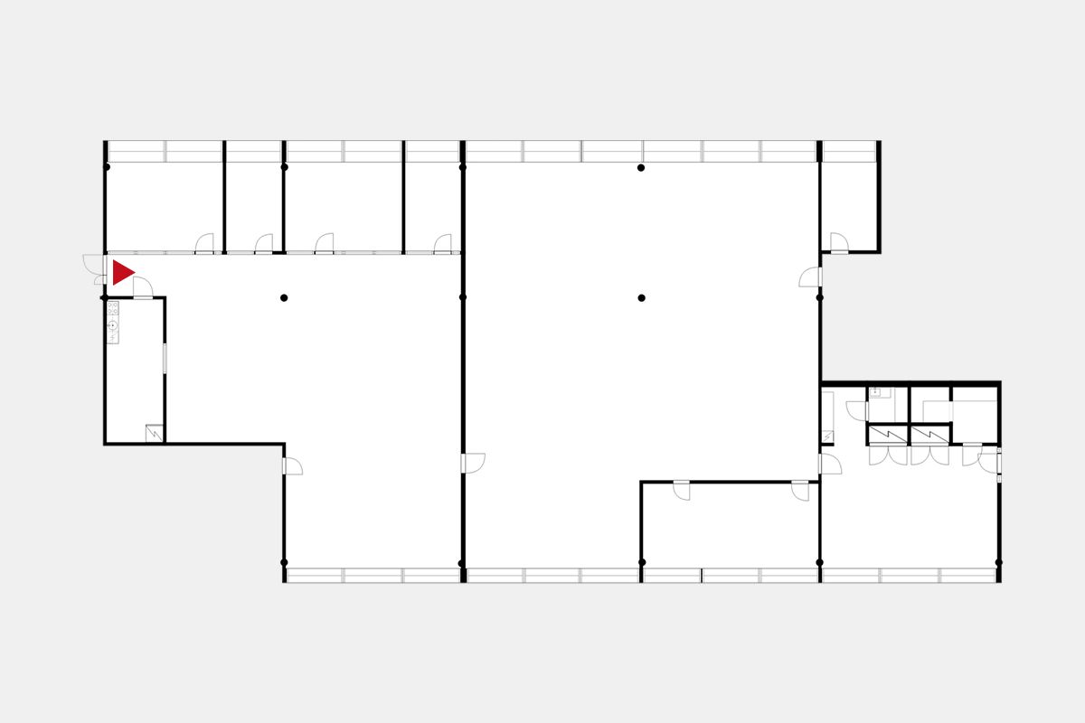
628 m2
Pohjapiirros
Virtuaaliesittely
Kiinteistö
Niittytaipaleen toimistotalossa yhdistyvät joustavat ja kustannustehokkaat toimitilat, viihtyisä työympäristö sekä hyvien kulkuyhteyksien sijainti.
Kiinteistössä juuri uudistettu viihtyisä aulatila. Kaikki toimistotilat ovat muokattavissa yrityksesi toimintaa ja identiteettiä tukevaksi työskentely-ympäristöksi.
Niittytaipaleen toimistotalo sijaitsee aivan Länsiväylän kupeessa, kehittyvän ja kasvavan Niittykummun alueella, jossa sijaitsee useiden kotimaisten ja kansainvälisten yritysten toimitiloja. Niittytaipaleeseen pääset kätevästi niin omalla autolla kuin julkisilla kulkuvälineilläkin. Niittykummun metroasemalle on alle kymmenen minuutin kävelymatka ja Helsingin keskustaan ajat omalla autolla Länsiväylää pitkin noin 15 minuutissa. Pysäköintitilaa on runsaasti niin omalla autolla kulkeville kuin yritysten asiakkaillekin. Työmatkapyöräilijät on huomioitu laadukkaalla pyöräparkilla ja pukuhuonetiloilla.
Lähistöllä sijaitsevien Kauppakeskus Niityn sekä Iso Omenan ansiosta alueen palvelutarjonta on todella laaja ja monipuolinen. Niittytaipaleen kiinteistössä on tarjolla eri kokoisia neuvottelutiloja ja henkilöstön hyvinvointiin on kiinnitetty huomiota muun muassa kompaktilla kuntosalilla sekä työmatkaliikuntaa tukevin sosiaalitiloin.
Niittytaipaleen toimistotalolle on myönnetty BREEAM In-Use -ympäristösertifikaatti. Kiinteistö suoriutui erityisen hyvin mm. julkisen ja kevyen liikenteen mahdollistamisessa sekä ympäristö- ja energiatehokkuutta tukevissa toimintamalleissa. Myönnetty sertifikaatti on osoitus hyvästä ympäristötyöstä, jota jatkuvasti kehitetään kiinteistön ylläpidossa.
Kiinteistössä juuri uudistettu viihtyisä aulatila. Kaikki toimistotilat ovat muokattavissa yrityksesi toimintaa ja identiteettiä tukevaksi työskentely-ympäristöksi.
Niittytaipaleen toimistotalo sijaitsee aivan Länsiväylän kupeessa, kehittyvän ja kasvavan Niittykummun alueella, jossa sijaitsee useiden kotimaisten ja kansainvälisten yritysten toimitiloja. Niittytaipaleeseen pääset kätevästi niin omalla autolla kuin julkisilla kulkuvälineilläkin. Niittykummun metroasemalle on alle kymmenen minuutin kävelymatka ja Helsingin keskustaan ajat omalla autolla Länsiväylää pitkin noin 15 minuutissa. Pysäköintitilaa on runsaasti niin omalla autolla kulkeville kuin yritysten asiakkaillekin. Työmatkapyöräilijät on huomioitu laadukkaalla pyöräparkilla ja pukuhuonetiloilla.
Lähistöllä sijaitsevien Kauppakeskus Niityn sekä Iso Omenan ansiosta alueen palvelutarjonta on todella laaja ja monipuolinen. Niittytaipaleen kiinteistössä on tarjolla eri kokoisia neuvottelutiloja ja henkilöstön hyvinvointiin on kiinnitetty huomiota muun muassa kompaktilla kuntosalilla sekä työmatkaliikuntaa tukevin sosiaalitiloin.
Niittytaipaleen toimistotalolle on myönnetty BREEAM In-Use -ympäristösertifikaatti. Kiinteistö suoriutui erityisen hyvin mm. julkisen ja kevyen liikenteen mahdollistamisessa sekä ympäristö- ja energiatehokkuutta tukevissa toimintamalleissa. Myönnetty sertifikaatti on osoitus hyvästä ympäristötyöstä, jota jatkuvasti kehitetään kiinteistön ylläpidossa.
Pysäköinti
Pihalla vuokrattavia autopaikkoja.
Palvelut
Niittykummun ostoskeskus.
Kulkuyhteydet
Hyvät liikenneyhteydet Länsiväylän kautta, niin busseilla kuin omalla autolla. Bussipysäkki 800 m, Juna-asema 8,5 km, Lentoasema 28,3 km.
Vapautuu
Heti
Rakennusvuosi
2002
Kerros
3
Energiatehokkuusluokka
Ei lain edellyttämää energiatodistusta
Näkyvällä paikalla
Hissi
Ota yhteyttä
ScanReal Oy LKV
Opus Business Park
Hitsaajankatu 24
00810 Helsinki
info@scanreal.fi
Puh:
Näytä puhelinnumero
020 730 8830
Sopivat toimitilat yhdellä otolla!
Kartoitamme toimitilatarpeesi ja etsimme yrityksellesi parhaiten sopivat vapaat toimitilat. Koska vuokranantajat maksavat palvelumme, on tämä yrityksellesi veloituksetonta.
OTA YHTEYTTÄ - SOVI NÄYTTÖ!
Kaikki kohteemme eivät ole netissä, kerro tilatarpeesi niin kartoitamme vaihtoehdot.
Palvelumme on tilanhakijalle ilmainen
Pyydä lisätietoa
