Vuokrataan/myydään liiketilat - Forssa
Kuhalankatu 2, Keskusta, 30420 Forssa #10750480
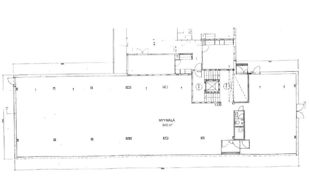
Myymälähuoneisto Forssan keskustan tuntumassa
Osoite
Kuhalankatu 2, 30420 Forssa
Tilatyyppi
Liiketilaa
343 m2
Vuokra
3500 e
Muuta
Kesäkuun alusta vapautuva siisti, valoisa liike/myymälähuoneisto keskustan tuntumasta, Rautatiekadun ja Kuhalankadun kulmasta.
Tervetuloa tutustumaan, varaathan välittäjältä oman esittelyaikasi. Voit kysyä meiltä myös muita sopivia vaihtoehtoja, kauttamme löydät juuri Teidän tarpeisiinne sopivat tilat.
Palvelumme on tilanhakijalle veloitukseton!
Tervetuloa tutustumaan, varaathan välittäjältä oman esittelyaikasi. Voit kysyä meiltä myös muita sopivia vaihtoehtoja, kauttamme löydät juuri Teidän tarpeisiinne sopivat tilat.
Palvelumme on tilanhakijalle veloitukseton!
Vapautuu
Kysy
Rakennusvuosi
1972
Kerros
katutaso
Ota yhteyttä
Tuloskiinteistöt Oy
Kauppiaskatu 11 C 23, 20100 Turku
Näytä puhelinnumero
(02) 274 3500
Ritva Nuotio
Commercial Real Estate Advisor LKV, KED
Näytä puhelinnumero
+358 50 5261 744
Juho Haapasalo
Commercial Real Estate Advisor
Näytä puhelinnumero
+358 44 491 4624
Pyydä lisätietoa
