Vuokrataan toimistotilat, liiketilat - Porvoo
Taidetehtaankatu 4, 06100 Porvoo #10750251
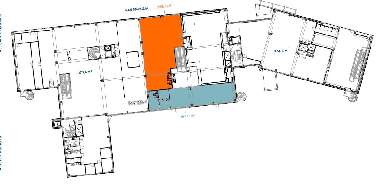
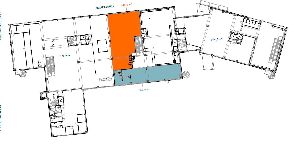
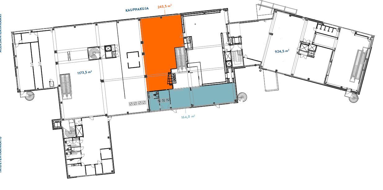
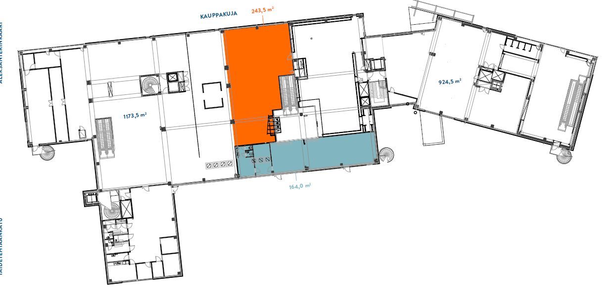
Vuokrataan 2.kerroksen 243,5 m2 moderni ja avara liiketila.
Mahdollista toimistokäyttöä rajoittaa se, että tilassa vain yksi ikkuna.
Porvoon Taidetehtaan Kauppakuja on Porvoon taajama-alueen suurin muodin, urheilun ja kulutustavarakaupan keskittymä ja Länsirannan alueen kaupallinen keskus. Samasta kiinteistöstä vuokrattavissa varastotilaa 40-200m2.
Länsiranta on Porvoon keskustaajaman nopeimmin kehittyvä ja kasvava alue. Vilkkaan asuntorakentamisen lisäksi Länsirannalle on nousemassa vuoteen 2025 mennessä 7 000-10 000 m2 vähittäiskaupan tilaa, joista merkittävin suunnitteilla oleva hanke on Taidetehtaan liiketilojen viereen rakennettava Porvoon uusi Citymarket.
Lisätietoja numerosta 020 7290 710. Lisää kohteita osoitteessa www.premises.fi.
Energialuokka BKerros: 2
CRE PREMISES
Puh. Näytä puhelinnumero 020 7290 710
Vantaankoskentie 14
01670 VANTAA
