Vuokrataan toimistotilat - Helsinki
Valimotie 1, Pitäjänmäki, 00380 Helsinki #10750235
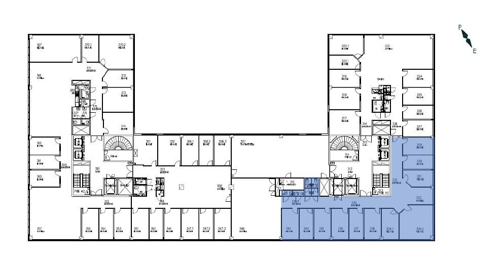
Vuokrataan modernia monitilatoimistoa Pitäjänmäessä, paraatipaikalla monipuolisten liikenneyhteyksien sekä palveluiden läheisyydessä. Tämä pintaremontoitu tila sijaitsee 3. kerroksessa. Ohessa havainnollistavia kuvia kiinteistön muista tiloista sekä viitteellinen pohjakuva.
Valimotie 1 tarjoaa laadukkaita ratkaisuja erilaisiin tarpeisiin. Talossa toimii uusi lounasravintola, joka aukeaa elokuussa päivitetyllä konseptilla. Samassa yhteydessä on myös vuokrattava neuvotteluhuone. Lisäksi lastauslaituri sekä kolme tavarahissiä mahdollistavat isompienkin tavaroiden sujuvan kuljetuksen toimitiloihin tai kellarin varastotiloihin ja 2-kerroksinen lämmin parkkihalli sekä sisäpihan vieraspaikat tarjoavat runsaasti autopaikkoja. Sujuvan sporttisemman työmatkailun taas mahdollistavat pyöräparkki sekä kellarin uusitut sosiaalitilat.
Pitäjänmäessä toimii satoja yrityksiä, ja siellä asuu vajaat 15 000 ihmistä. Pitäjänmäestä löytyvät peruspalvelut: elintarvikemyymälät, pankkikonttorit ja muutamia lounaskahviloita.
Lisätietoja numerosta 020 7290 710. Lisää kohteita osoitteessa premises.fi.
Energialuokka D.Kerros: 3
CRE PREMISES
Puh. Näytä puhelinnumero 020 7290 710
Vantaankoskentie 14
01670 VANTAA
