Vuokrataan toimistotilat - Helsinki
Pursimiehenkatu 29-31, Punavuori, 00150 Helsinki #10750066
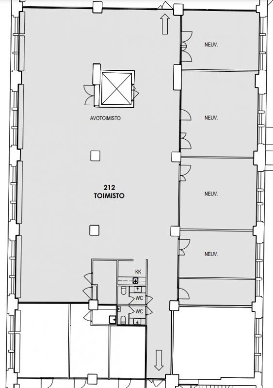
Merikorttelissa, Media- ym. luovan alan toimijoiden keskittymässä vuokrattavana vanhan teollisuustalon henkeen sovitettu, nykyajan teknisten vaatimusten mukaan saneerattu, korkeatasoinen 418m2 monitilatoimisto, joka koostuu sekä erillisistä työ/tiimihuoneista että avotilasta. Huoneistossa on tasokkaat keittiö, neukkarit ja sosiaalitilat. Tämän huoneiston isot ikkunat avautuvat Pursimiehenkadulle ja Perämiehenkadulle. Talossa on monipuoliset oheispalvelut. SOITA ja SOVI ESITTELY! Puh: 09 7745 100, palvelumme on tilanhakijalle maksutonta. (PS. Kohdekuvat eivät välttämättä ole juuri tästä tilasta).
Näkyvällä paikalla
Hissi
Lastauslaituri
Senaatin Notariaatti Oy LKV
Lämmittäjänkatu 4 A
FIN-00880 Helsinki
Tel:
Näytä puhelinnumero
+358 9 7745 100
