Vuokrataan toimistotilat - Helsinki
Elimäenkatu 24, Vallila, 00510 Helsinki #10749732
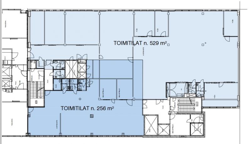
Vapaana 529 m2 toimistotila Vallila Corner -kiinteistöstä. Tilat räätälöidään vielä vuokralaiselle sopiviksi. Ohessa havainnollistavia kuvia kiinteistön tiloista.
Kiinteistön palveluihin kuuluu aulapalvelu, kahvila, vuokrattavat neuvottelutilat sekä 85-paikkainen auditorio. Kaksikerroksisessa parkkihallissa on vuokrattavissa parkkioikeuksia. Raitiovaunu- ja bussipysäkille 200 metrin matka.
Entisestä teollisuuskeskittymästä urbaanin eläväksi kaupunginosaksi kehittynyt Vallila on nykyään mitä oivallisin kotipaikka eri alojen yrityksille ja yhteisöille: monipuoliset palvelut, kätevät yhteydet ja nostalginen historia houkuttelevat alueelle niin pieniä kuin suuria toimijoita.
Lisätietoja numerosta 020 7290 710. Lisää kohteita osoitteessa www.premises.fi
Kohteella ei ole lain edellyttämää energiatodistusta tai energialuokka ei tiedossa.Kerros: 4
CRE PREMISES
Puh. Näytä puhelinnumero 020 7290 710
Vantaankoskentie 14
01670 VANTAA
