Vuokrataan toimistotilat - Espoo
MaarinPortti, Metsänpojankuja 1, Pohjois-Tapiola, 02130 Espoo #10749612
Upea ja moderni, täysremontoitu 268 m² toimistotila Pohjois-Tapiolassa, aivan Kehä I:n läheisyydessä.
Osoite
Metsänpojankuja 1, 02130 Espoo
Tilatyyppi
Toimistotilaa
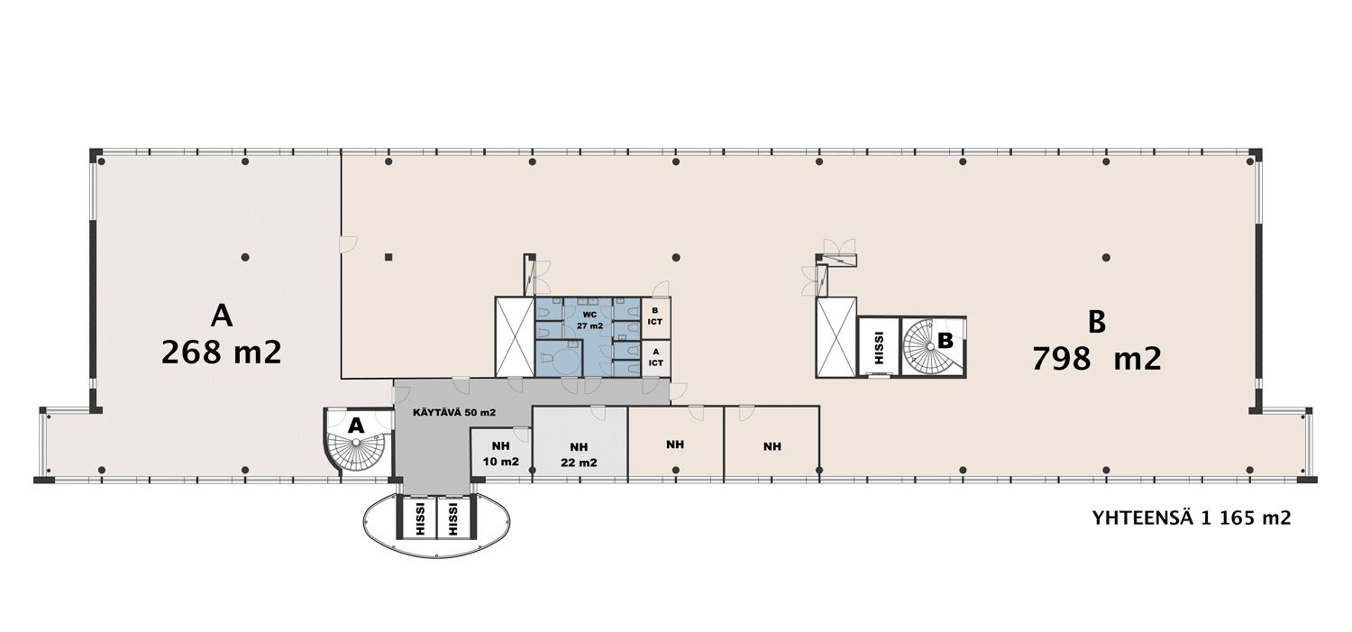
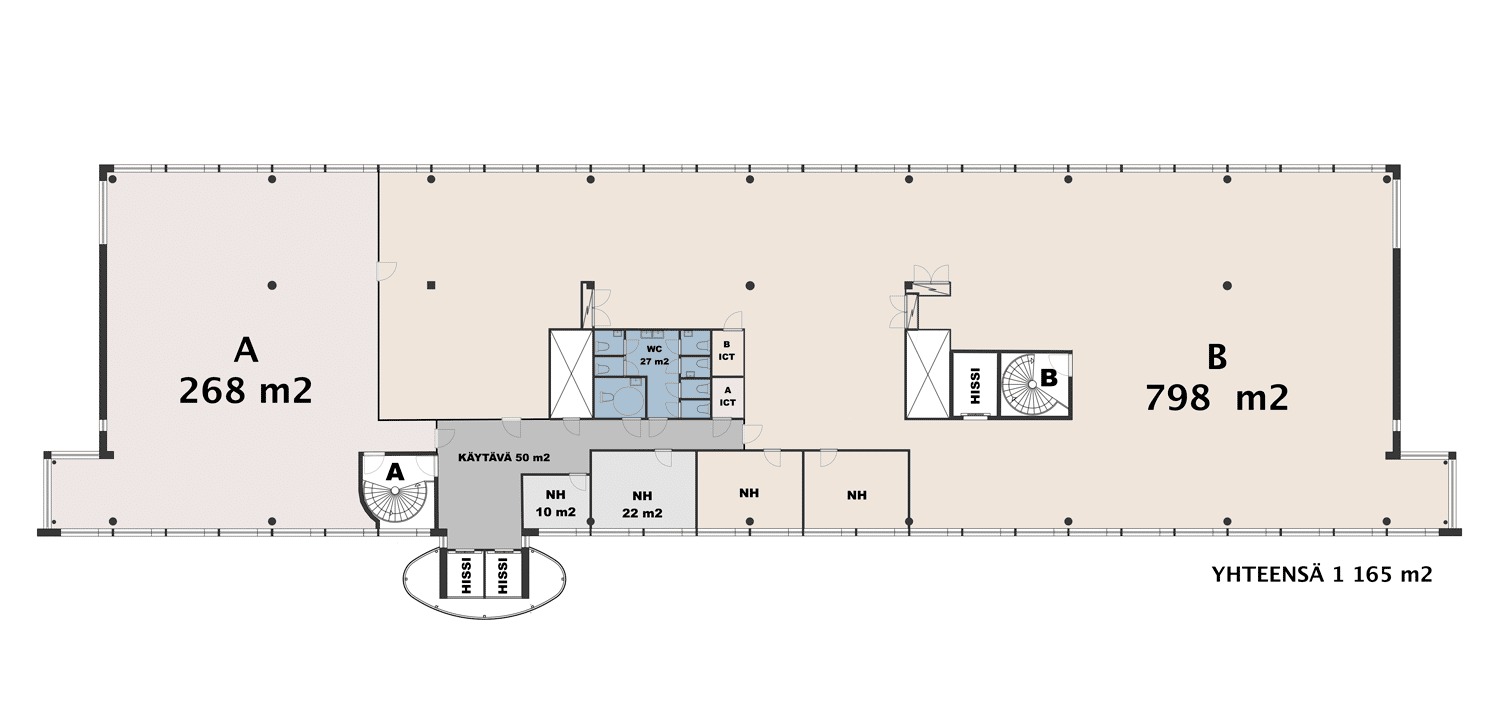
268 m2
Pohjapiirros
Kiinteistö
Pohjois-Tapiolan ja Otaniemen Maarin alueen rajalla sijaitseva 6-kerroksinen toimitilakiinteistö modernisoidaan ja saneerataan kokonaisvaltaisesti vastaamaan nykypäivän yritysten moninaisia tarpeita. Uudistuksen myötä syntyy vastuullinen ja tyylikäs pääkonttoritason toimitilakiinteistö MaarinPortti.
MaarinPorttiin valmistuvat modernit toimitilat ovat muunneltavia ja ne suunnitellaan yksilöllisesti vastaamaan yrityksesi tarpeita. Tulevalla asiakkaalla on mahdollisuus vaikuttaa oman toimistonsa toimitilaratkaisuihin sekä materiaalivalintoihin.
MaarinPortti modernisoidaan kokonaisvaltaisesti vuoden 2025 aikana ja uudistuksen myötä kiinteistölle haetaan LEED Platinum -tason ympäristösertifikaattia. Platinum on kansainvälisen LEED-sertifiointijärjestelmän korkein taso, joka kertoo ympäristöasioiden erinomaisesta huomioimisesta kiinteistössä
Kiinteistön suunnittelussa on huomioitu hyvinvointia tukevia työympäristöominaisuuksia, kuten sosiaalinen kanssakäyminen, terveellinen ruokailu, aktiivisuus ja liikunta sekä henkistä hyvinvointia edistävät kategoriat. Tämän lisäksi tilasuunnittelussa on kiinnitetty erityishuomiota muun muassa sisäilman laatuun ja ilmanvaihtoon, valaistukseen sekä akustiikkaan.
MaarinPortti sijaitsee Pohjois-Tapiolassa, Kehä I:n ja Tapiolan liittymän välittömässä läheisyydessä.
MaarinPortti yhdistyy Otaniemen länsiosassa olevaan Maarin alueeseen Kehä I:n yli menevän Maarinsillan kautta. Maarin alueen mittava täydennysrakentaminen ja raidejokeripysäkin valmistuminen kehittävät aluetta entistä monipuolisemmaksi osaksi alueen arvokasta kulttuuriympäristöä.
Sijaintinsa puolesta MaarinPorttiin on helppo saapua. Kiinteistön oman pysäköintihallin ansiosta parkkipaikan etsimiseen ei kulu turhaa aikaa ja kiinteistön uudistuksen yhteydessä pysäköintihalliin lisätään myös sähköautojen latauspisteitä. Kehä I:tä pitkin kulkevat lukuisat bussit, ja runkolinja 550 palvelee erityisen hyvin myös MaarinPorttiin saapuvia. Lähin metroasema on Aalto-yliopisto, josta kävelee kohteeseen alle 15 minuutissa. Tapiolan keskus ja Kauppakeskus Ainoan kattavat palvelut ovat vain noin 2 km päässä. Kohteesta on myös vain noin 8 minuutin kävelymatka merelliselle Laajalahden luonnonsuojelualueelle sekä Espoon rantaraitille.
MaarinPorttiin valmistuvat modernit toimitilat ovat muunneltavia ja ne suunnitellaan yksilöllisesti vastaamaan yrityksesi tarpeita. Tulevalla asiakkaalla on mahdollisuus vaikuttaa oman toimistonsa toimitilaratkaisuihin sekä materiaalivalintoihin.
MaarinPortti modernisoidaan kokonaisvaltaisesti vuoden 2025 aikana ja uudistuksen myötä kiinteistölle haetaan LEED Platinum -tason ympäristösertifikaattia. Platinum on kansainvälisen LEED-sertifiointijärjestelmän korkein taso, joka kertoo ympäristöasioiden erinomaisesta huomioimisesta kiinteistössä
Kiinteistön suunnittelussa on huomioitu hyvinvointia tukevia työympäristöominaisuuksia, kuten sosiaalinen kanssakäyminen, terveellinen ruokailu, aktiivisuus ja liikunta sekä henkistä hyvinvointia edistävät kategoriat. Tämän lisäksi tilasuunnittelussa on kiinnitetty erityishuomiota muun muassa sisäilman laatuun ja ilmanvaihtoon, valaistukseen sekä akustiikkaan.
MaarinPortti sijaitsee Pohjois-Tapiolassa, Kehä I:n ja Tapiolan liittymän välittömässä läheisyydessä.
MaarinPortti yhdistyy Otaniemen länsiosassa olevaan Maarin alueeseen Kehä I:n yli menevän Maarinsillan kautta. Maarin alueen mittava täydennysrakentaminen ja raidejokeripysäkin valmistuminen kehittävät aluetta entistä monipuolisemmaksi osaksi alueen arvokasta kulttuuriympäristöä.
Sijaintinsa puolesta MaarinPorttiin on helppo saapua. Kiinteistön oman pysäköintihallin ansiosta parkkipaikan etsimiseen ei kulu turhaa aikaa ja kiinteistön uudistuksen yhteydessä pysäköintihalliin lisätään myös sähköautojen latauspisteitä. Kehä I:tä pitkin kulkevat lukuisat bussit, ja runkolinja 550 palvelee erityisen hyvin myös MaarinPorttiin saapuvia. Lähin metroasema on Aalto-yliopisto, josta kävelee kohteeseen alle 15 minuutissa. Tapiolan keskus ja Kauppakeskus Ainoan kattavat palvelut ovat vain noin 2 km päässä. Kohteesta on myös vain noin 8 minuutin kävelymatka merelliselle Laajalahden luonnonsuojelualueelle sekä Espoon rantaraitille.
Vapautuu
Heti
Saneerausvuosi
2024
Energiatehokkuusluokka
Ei lain edellyttämää energiatodistusta
Näkyvällä paikalla
Ota yhteyttä
ScanReal Oy LKV
Opus Business Park
Hitsaajankatu 24
00810 Helsinki
info@scanreal.fi
Puh:
Näytä puhelinnumero
020 730 8830
Sopivat toimitilat yhdellä otolla!
Kartoitamme toimitilatarpeesi ja etsimme yrityksellesi parhaiten sopivat vapaat toimitilat. Koska vuokranantajat maksavat palvelumme, on tämä yrityksellesi veloituksetonta.
OTA YHTEYTTÄ - SOVI NÄYTTÖ!
Kaikki kohteemme eivät ole netissä, kerro tilatarpeesi niin kartoitamme vaihtoehdot.
Palvelumme on tilanhakijalle ilmainen
Pyydä lisätietoa
