Vuokrataan toimistotilat - Helsinki
Sorvaajankatu 11 A, Herttoniemi, 00880 Helsinki #10749432
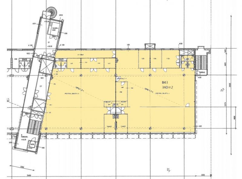
Vuokrataan monikäyttöistä toimistotilaa Herttoniemestä. Avaran avotilan lisäksi muutama toimistohuone / neuvotteluhuone. Katso tilan virtuaaliesittely.Sorvaajankatu 11 A on pienteollisuuskiinteistö Herttoniemessä. Kiinteistön tilat soveltuvat hyvin toimisto-, tuotanto- ja varastotiloiksi. Talossa noin 20 auton parkkihalli ja pihalla on hyvin pysäköintitilaa. Talon kellarikerroksesta voi tarvittaessa vuokrata pukuhuoneen suihkulla. Lisätietoja soita 020 730 4530 tai info@repoint.fi. Palvelumme on tilanhakijalle ilmainen.
Repoint Toimitilat Oy
Itälahdenkatu 22 B, 00210 Helsinki
Näytä puhelinnumero
020 730 4530
Lisätietoja soita Näytä puhelinnumero 020 730 4530 tai info@repoint.fi
https://repoint.fi/