Vuokrataan toimistotilat - Helsinki
Eliel Saarisen tie 2/Nuijamiestentie 9, Pohjois-Haaga, 00400 Helsinki #10749366
Vuokrattavana valoisaa, edustavaa ja laadukasta toimistotilaa näkyvällä paikalla.
Osoite
Eliel Saarisen tie 2/Nuijamiestentie 9, 00400 Helsinki
Tilatyyppi
Toimistotilaa
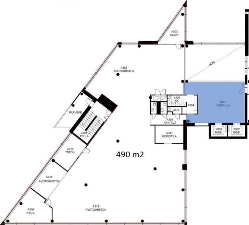
490 m2
Tilajako
Jaettavissa
Kiinteistö
Vuokrattavana valoisaa, edustavaa ja laadukasta toimistotilaa näkyvällä paikalla, joka on muokattavissa tulevan vuokralaisen tarpeisiin sopivaksi.
Sijainti
Pohjois-Haaga, Helsinki
Pysäköinti
Pihalta löytyy pysäköintipaikkoja.
Palvelut
-Aulapalvelu
-Lounasravintola
-Kuntosali
-Lounasravintola
-Kuntosali
Kulkuyhteydet
-Bussi
-Juna
-Oma auto
-Juna
-Oma auto
Vapautuu
Heti
Kerros
3
Energiatehokkuusluokka
E
Näkyvällä paikalla
Jaettavissa
Hissi
Ota yhteyttä
REALIUM OY LKV
Tammasaarenkatu 1, 00180 Helsinki
Vaihde:
Näytä puhelinnumero
010 326 346
Tuomo Mäkelä
tuomo.makela@realium.fi
p.
Näytä puhelinnumero
044 050 1158
Joel Keto
joel.keto@realium.fi
p.
Näytä puhelinnumero
045 317 0330
KAIKKI TILAVAIHTOEHDOT KERRALLA!
SOITA - MEILAA JA TILAA NÄYTTÖ!
Ilmainen palvelu tilanhakijoille.
Kartoitamme parhaat tilavaihtoehdot.
Kaikki kohteet eivät ole netissä.
Pyydä lisätietoa
