Vuokrataan toimistotilat - Helsinki
Kornetintie 3, Pitäjänmäki, 00380 Helsinki #10749343
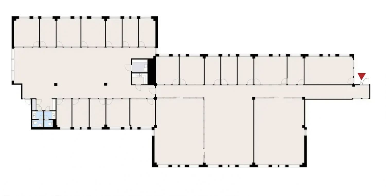
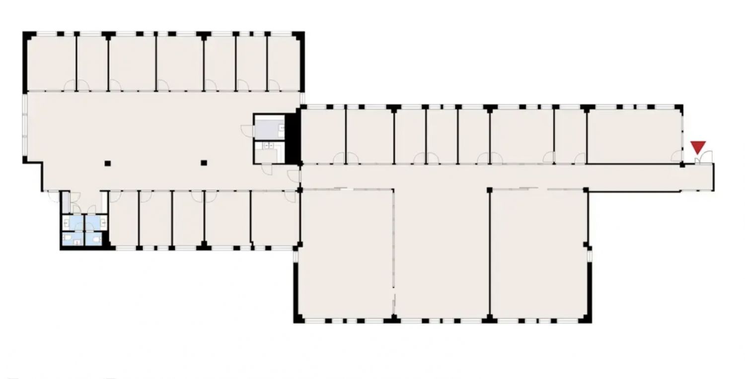
Kolmannen kerroksen toimistotila, josta löytyy sekä erikokoisia huoneita että avotilaa. Mahdollisuus modifioida asiakkaan tarpeisiin. Rakennuksesta löytyy aulapalvelu, ravintola, kuntosali-, sauna- ja neuvottelutilat. Kohde sijaitsee helposti saavutettavalla paikalla Helsingin Pitäjänmäessä. Helsingin keskustaan n. 7 km ja Espoon Leppävaaraan 5 km. Hyvät julkiset yhteydet lähietäisyydellä.
Vuokraan kuuluvat peruspalvelut siivouksesta kulunvalvontaan ja kiinteistönhoitoon. Tarpeen mukaan hyödynnettävinä lisäpalveluina Kampus tarjoaa viidessä kiinteistössään mm. ravintolapalveluita, kokouskeskuksen, yhteiskäyttöauton, pesulapalvelut, kuriiri- ja postituspalvelut, auton pesua ja renkaidenvaihtoa sekä remontin valmistuttua saunatilat ja erilaisia hyvinvointipalveluita. Samassa rakennuksessa sijaitsevat ravintola, sekä 2020 valmistuvat kuntosali-, sauna- ja neuvottelutilat, joita täydentävät kampuksen muut palvelut. Kampuksen alueella on käytössä lähes 500 autopaikkaa, joista 130 sijaitsee halleissa.
Lisätiedot 020 7290 710 ja lisää kohteita premises.fi.
Energialuokka cKerros: 3
Hyvät kevyenliikenteenväylät tarjoavat loistavan mahdollisuuden työmatkan tekemiseen vaikka polkupyörällä. Matka taittuu joutuisasti myös kävellen, vain 10 minuuttia asemalta.
CRE PREMISES
Puh. Näytä puhelinnumero 020 7290 710
Vantaankoskentie 14
01670 VANTAA
