Vuokrataan - Espoo
Tekniikantie 4, Otaniemi, 02150 Espoo #10749191
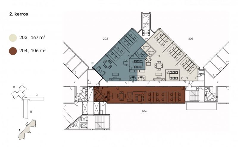
Vuokrataan toisen kerroksen 167m2 toimistotila. Aallonharjan toimistokiinteistö sijaitsee Espoon Otaniemessä eli suomalaisen insinööriosaamisen ja huippuinnovaatioiden pääkallopaikalla. Täällä riittää ”pöhinää”, verkostoitumismahdollisuuksia sekä synergiaetuja erityisesti tekniikan alan toimijoille
Autopaikkoja vuokrattavana kiinteistön pihalta. Metroasemalle on 350 m (Aalto-Yliopisto). Bussipysäkille 300 m (108N, 111, 555).
Aallonharjan A-talon ravintolaa uudistetaan parhaillaan. Luvassa on tuoreista raaka-aineista valmistettuja ja hyvää työvirettä tukevia makuelämyksiä.
D-talon viihtyisä kahvila palvelee myös ravintolan uudistuksen aikana. Herkulliset kahvit ja tuoreet leivonnaiset, aamiaistuotteet ja välipalat – ota mukaan tai nauti paikan päällä!
Kysy lisää Jouko Raitanen Helsinki puh. 0504695444
RHG Real Estate
Hämeenkatu 2 B20, 20500 Turku
Näytä puhelinnumero
020 734 4020
Jouko Raitanen
Näytä puhelinnumero
050 469 5444
