Vuokrataan toimistotilat - Espoo
Metsänpojankuja 1, Pohjois-Tapiola, 02130 Espoo #10748971
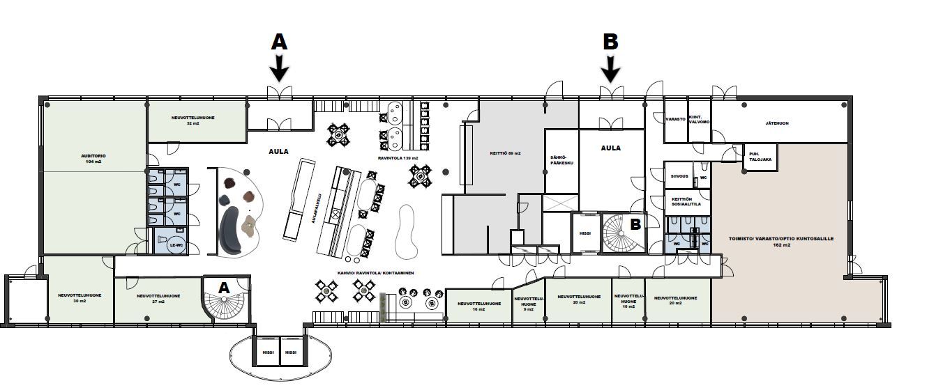
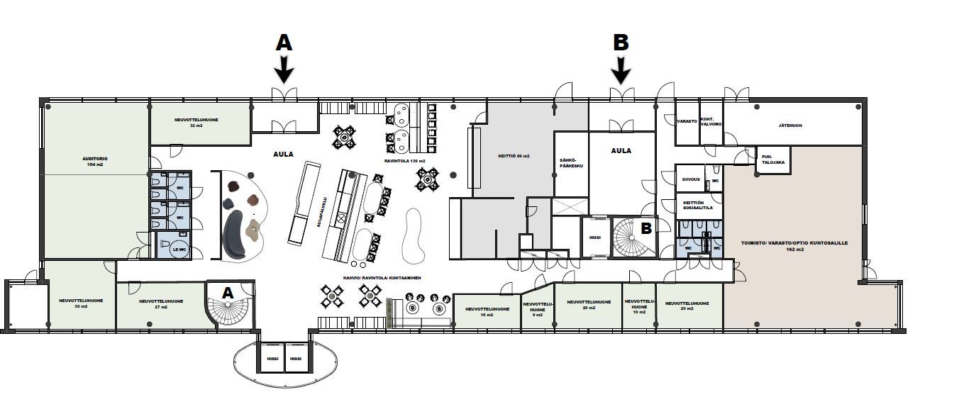
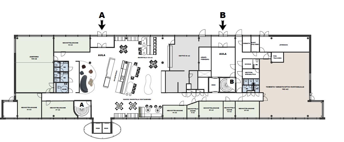
MaarinPortti on Pohjois-Tapiolan ja Otaniemen Maarin alueen rajalla sijaitseva 6-kerroksinen toimitilakiinteistö, joka modernisoidaan ja saneerataan kokonaisvaltaisesti vastaamaan nykypäivän yritysten moninaisia tarpeita. Uudistuksen myötä syntyy vastuullinen ja tyylikäs pääkonttoritason toimitilakiinteistö. MaarinPorttin modernit toimitilat ovat muunneltavia ja ne suunnitellaan yksilöllisesti vastaamaan yrityksesi tarpeita.
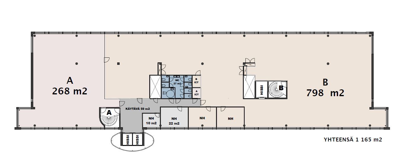
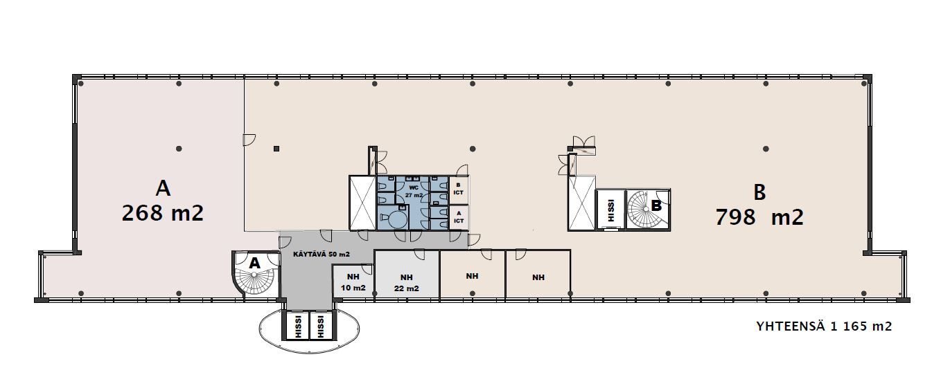
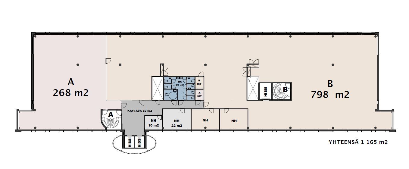
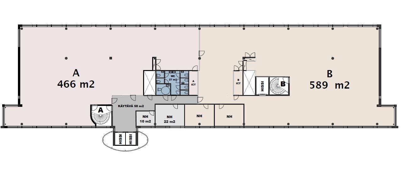
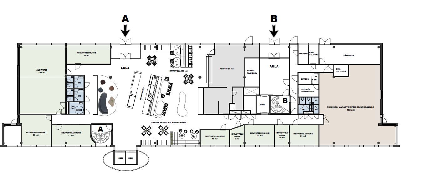
Tiloja valmistuu remontista 2024 Maarinportista. Tilakoot esim. 268 - 1165 m2. Kerroksen koko n 1165 m2. Tällä hetkellä tiloja saatavissa kerroksittain, jopa yli 5000 m2. Yhteen koko kerrokseen saatavissa 50 - 120 työpistettä. Tulevana vuokralaisena tilankäyttöratkaisuun ja materiaalivalintoihin voi vaikuttaa ja käytössä on myös vuokranantajan tarjoama sisustussuunnittelija.
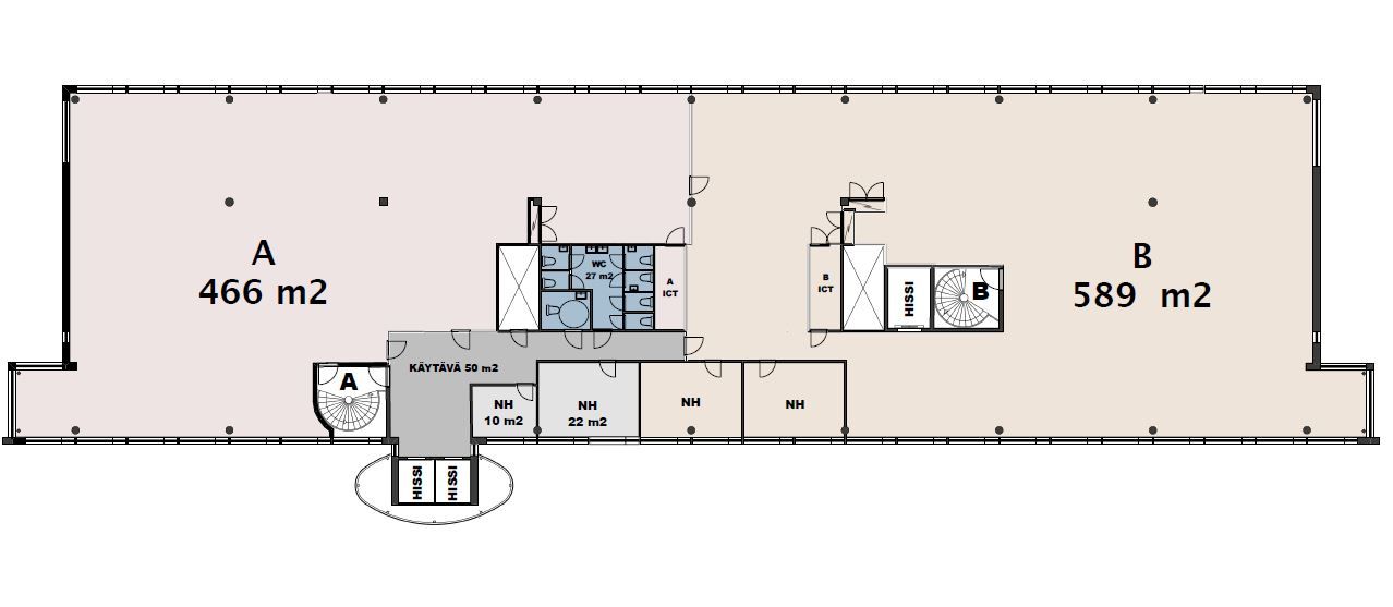
Tämä tilakoko on esimerkki yhden kokonaisen kerroksen tilasta johon voi saada noin 50-100 työpistettä.
Lisätietoja numerosta 020 7290 710. Lisää kohteita osoitteessa premises.fi.
Energialuokka A
CRE PREMISES
Puh. Näytä puhelinnumero 020 7290 710
Vantaankoskentie 14
01670 VANTAA
