Vuokrataan toimistotilat, liiketilat - Helsinki
Porkkalankatu 13, Salmisaari, 00180 Helsinki #10748793
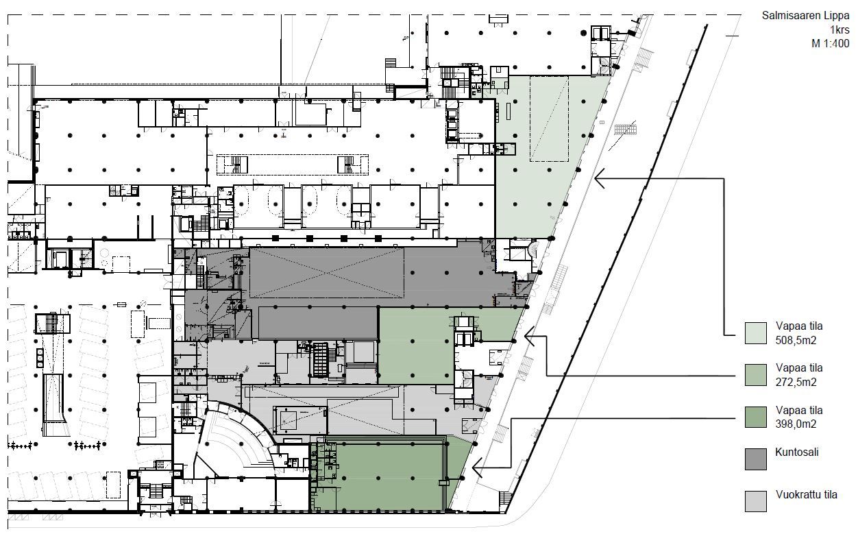
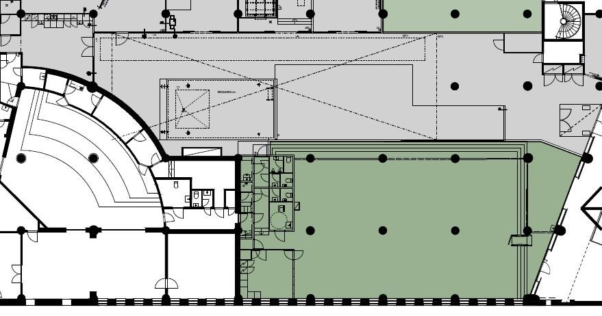
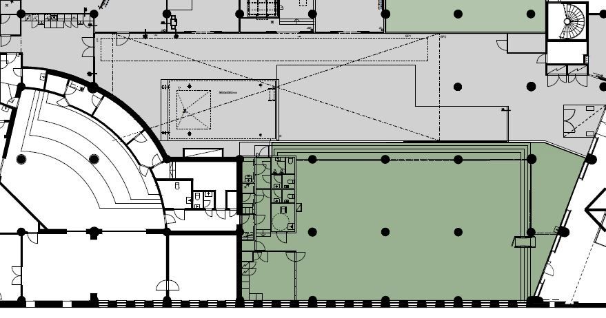
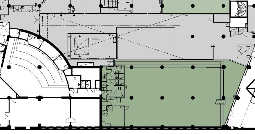
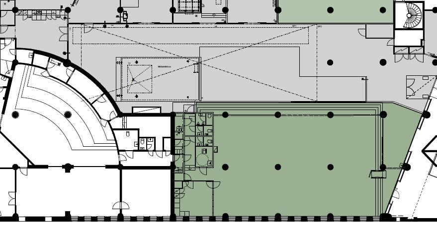
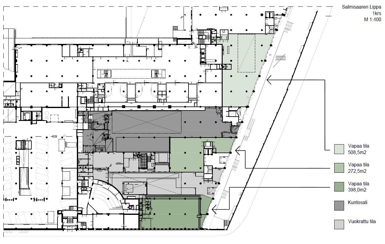
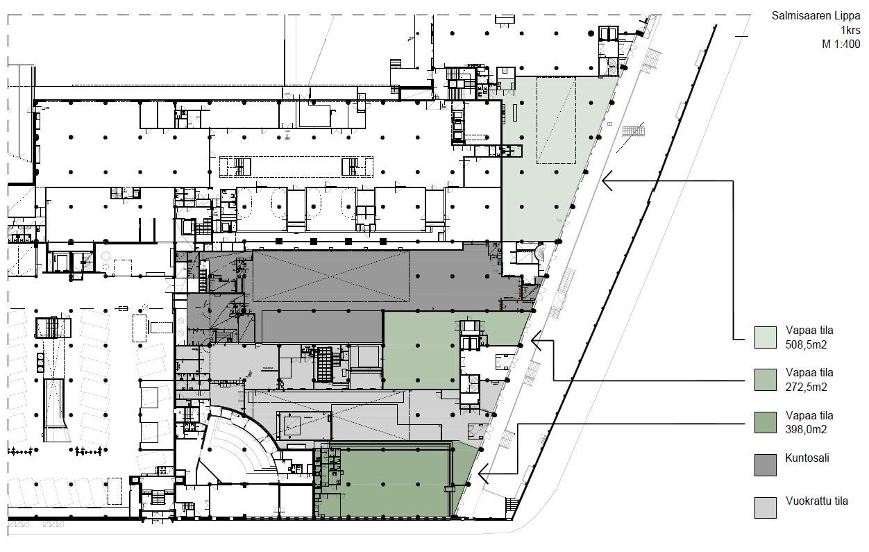
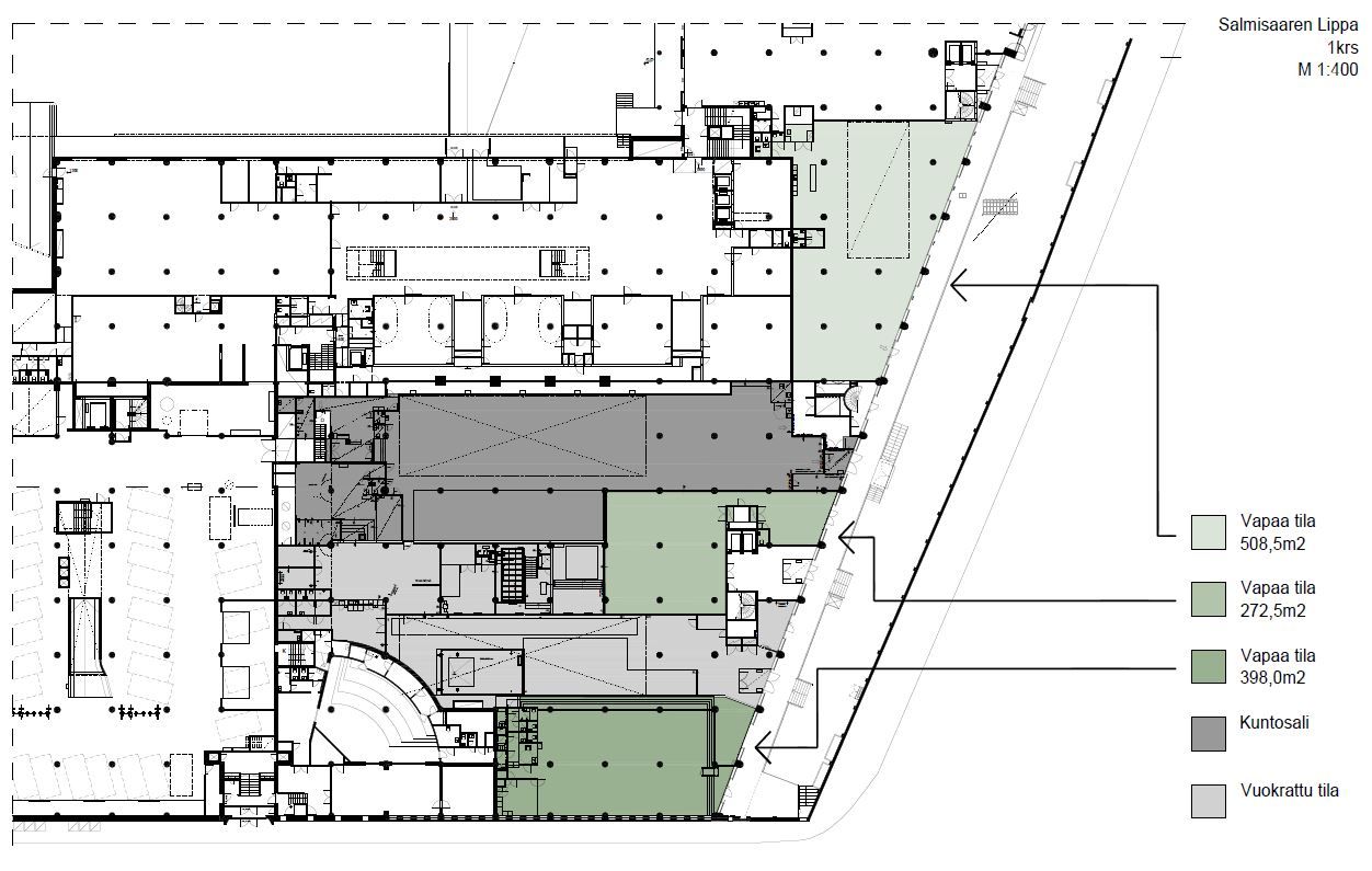
Korkeaa tilaa, joka soveltuu liiketilaksi, showroomiksi, liikuntatilaksi tai toimistoksi. Tilaan suora kulku lastauslaiturilta. Tilakorkeus yli 4m.
Helsingin kantakaupungissa sijaitseva Lippa kuuluu osana Oikeustalon kiinteistökokonaisuutta. Lähes sadan vuoden historian omaavan Lipan tilat muuntautuvat ja elävät tulevien toimijoidensa mukaan. Aiemmin menestyksekkäille brändeille, kuten Finlaysonille ja Adidakselle luovana pohjana toimineet tilat ovat muuntautuneet joustavasti toimiston lisäksi niin myymäläksi, suunnittelutilaksi, showroomiksi kuin tuotantotilaksi.
Lisätietoja numerosta +358 50 415 2127. Lisää kohteita osoitteessa www.premises.fi.
Kohteella ei ole lain edellyttämää energiatodistusta tai energialuokka ei tiedossa.Kerros: katutaso
CRE PREMISES
Puh. Näytä puhelinnumero 020 7290 710
Vantaankoskentie 14
01670 VANTAA
