Vuokrataan toimistohotelli - Vantaa
Vapaalantie 2, Vapaala, 01650 Vantaa #10748698
Uudistettuja nykyaikaisia toimistotiloja huippusijainnilla Kehä-I ja Kehä-III teiden välissä, Vihdintien varressa. Tilat muunneltavissa käyttäjän tarpeiden mukaan ja ovat heti vapaana.
Osoite
Vapaalantie 2, 01650 Vantaa
Tilatyyppi
Toimistohotelli
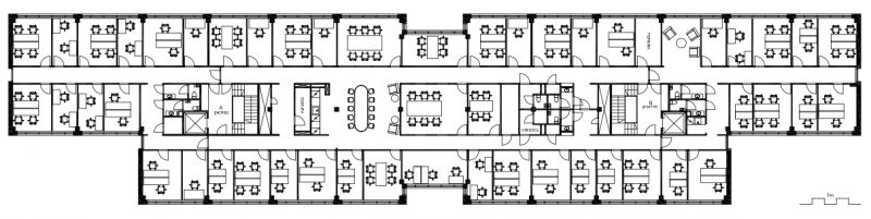
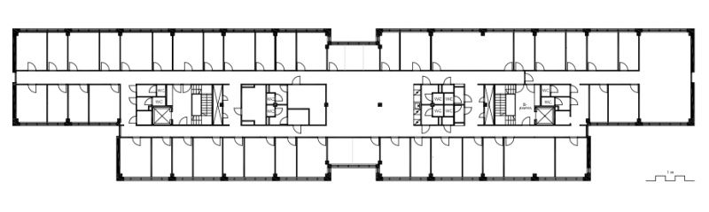
11 - 16 m2
Tilajako
Jaettavissa
Mahdollista vuokrata 11 – 16 m² toimistohuoneita, jonka lisäksi löytyy yhteiskäytössä olevat keittiö- ja WC-tilat.
Pohjapiirros
Vuokra
Alkaen 165€/kk
Vuokraan sisältyy sähkö, vesi, lämpö, jäähdytys
Sijainti
HUIPPUSIJAINTI
Kiinteistö sijaitsee lähellä liikenteen tärkeimpiä solmukohtia Vihdintien varressa, Kehä-I ja Kehä-III teiden välissä.
Bussit lähtevät suoraan kiinteistön kohdalta ja paikalle on helppo saapua myös autolla tai kevyen liikenteen väyliä pitkin.
Samassa pihapiirissä on Lidl ja naapurissa Neste-huoltoasema, missä myös Postin noutopiste. Konalan kaupallinen keskittymä on noin 1,5 km päässä ja kauppakeskus Myyrmanni 1,4 km päässä.
Kiinteistö sijaitsee lähellä liikenteen tärkeimpiä solmukohtia Vihdintien varressa, Kehä-I ja Kehä-III teiden välissä.
Bussit lähtevät suoraan kiinteistön kohdalta ja paikalle on helppo saapua myös autolla tai kevyen liikenteen väyliä pitkin.
Samassa pihapiirissä on Lidl ja naapurissa Neste-huoltoasema, missä myös Postin noutopiste. Konalan kaupallinen keskittymä on noin 1,5 km päässä ja kauppakeskus Myyrmanni 1,4 km päässä.
Muuta
MODERNIT TILAT
Tilat on remontoitu ja modernisoitu hiljattain vastaamaan nykyaikaisen toimistotyön vaatimuksia. Tiloihin on vaihdettu energiatehokas LED-valaistus.
ILMANVAIHTO JA VIILENNYS
Ilmanvaihto on modernisoitu ja sisältää viilennyksen – Mukavuutta vuodenajasta riippumatta.
USEITA ERI TILAKOKOJA
Tilakoot (m²) 10-100 m2, jonka lisäksi yhteisessä käytössä muiden käyttäjien kanssa olevat keittiö- ja WC-tilat.
Nykyiset tilat ovat pilkottavissa usealle eri käyttäjälle ja muunneltavissa tarpeen mukaan. Kysy lisää tilojen mahdollisuuksista vuokraajalta!
MUUNNELTAVUUS
Mitä ominaisuuksia kaipaat toimitiloillesi?
• toimistohuoneita
• neuvottelutiloja
• sosiaalitilaa
• keittiöitä
• kuntosalin
• lounasravintolan
• kuinka monelle henkilölle tarvitset työpisteet?
Me järjestämme! Tilamme ovat muunneltavissa useisiin eri tarpeisiin. Autamme sinua sopivien tilojen suunnittelussa ja toteutamme teille muuttovalmiit tilat helposti.
PYSÄKÖINTI
Pihassa suuri pysäköintialue.
ERITTÄIN KILPAILUKYKYINEN VUOKRAHINTA
Kohteen kilpailukykyinen vuokrataso asettuu maltilliselle tasolle, kun tilat vuokrataan sellaisenaan.
VAPAUTUMINEN
Tilat ovat heti vapaana. Vuokrahintaan lisätään kulloinkin voimassa oleva arvonlisävero.
HELPPO JA SUORAVIIVAINEN VUOKRAUS
• Vuokraa suoraan omistajalta ilman välikäsiä
• Saat meiltä vuokratarjouksen jopa 2 päivässä
• Järjestämme näytön tiloihin tarvittaessa nopeallakin aikataululla
• Soita heti tai jätä yhteydenottopyyntö – Palaamme sinulle viimeistään 24 h sisällä!
• Autamme sinua tilojen valinnassa sekä tilaratkaisujen suunnittelussa
Tilat on remontoitu ja modernisoitu hiljattain vastaamaan nykyaikaisen toimistotyön vaatimuksia. Tiloihin on vaihdettu energiatehokas LED-valaistus.
ILMANVAIHTO JA VIILENNYS
Ilmanvaihto on modernisoitu ja sisältää viilennyksen – Mukavuutta vuodenajasta riippumatta.
USEITA ERI TILAKOKOJA
Tilakoot (m²) 10-100 m2, jonka lisäksi yhteisessä käytössä muiden käyttäjien kanssa olevat keittiö- ja WC-tilat.
Nykyiset tilat ovat pilkottavissa usealle eri käyttäjälle ja muunneltavissa tarpeen mukaan. Kysy lisää tilojen mahdollisuuksista vuokraajalta!
MUUNNELTAVUUS
Mitä ominaisuuksia kaipaat toimitiloillesi?
• toimistohuoneita
• neuvottelutiloja
• sosiaalitilaa
• keittiöitä
• kuntosalin
• lounasravintolan
• kuinka monelle henkilölle tarvitset työpisteet?
Me järjestämme! Tilamme ovat muunneltavissa useisiin eri tarpeisiin. Autamme sinua sopivien tilojen suunnittelussa ja toteutamme teille muuttovalmiit tilat helposti.
PYSÄKÖINTI
Pihassa suuri pysäköintialue.
ERITTÄIN KILPAILUKYKYINEN VUOKRAHINTA
Kohteen kilpailukykyinen vuokrataso asettuu maltilliselle tasolle, kun tilat vuokrataan sellaisenaan.
VAPAUTUMINEN
Tilat ovat heti vapaana. Vuokrahintaan lisätään kulloinkin voimassa oleva arvonlisävero.
HELPPO JA SUORAVIIVAINEN VUOKRAUS
• Vuokraa suoraan omistajalta ilman välikäsiä
• Saat meiltä vuokratarjouksen jopa 2 päivässä
• Järjestämme näytön tiloihin tarvittaessa nopeallakin aikataululla
• Soita heti tai jätä yhteydenottopyyntö – Palaamme sinulle viimeistään 24 h sisällä!
• Autamme sinua tilojen valinnassa sekä tilaratkaisujen suunnittelussa
Vapautuu
Kysy
Rakennusvuosi
1987
Kerros
3 / 5
Näkyvällä paikalla
Jaettavissa
Hissi
Ota yhteyttä
Pyydä lisätietoa
