Vuokrataan toimistotilat - Espoo
Linnoitustie 3, Leppävaara, 02600 Espoo #10748035
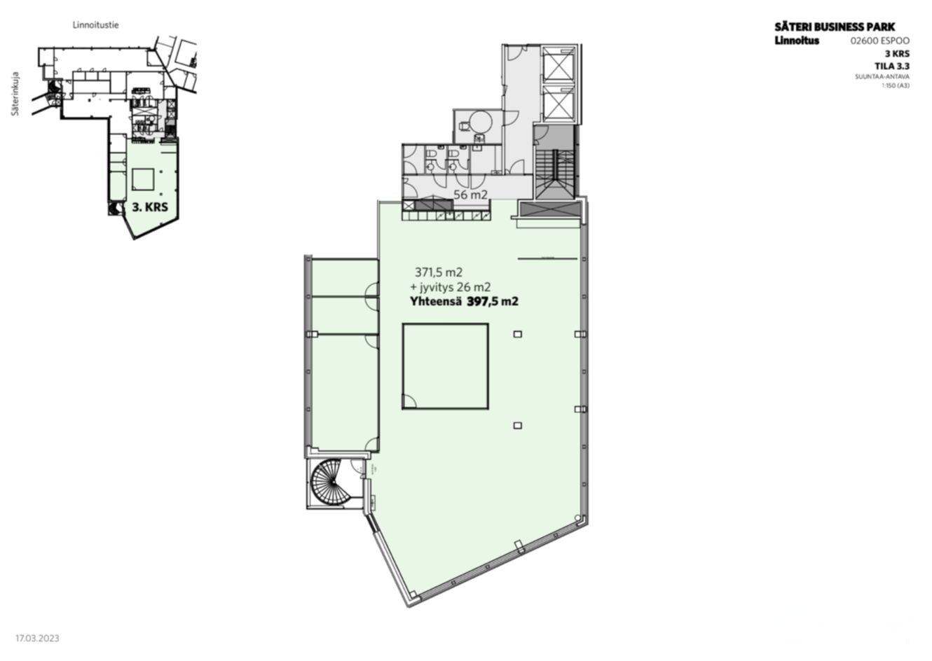
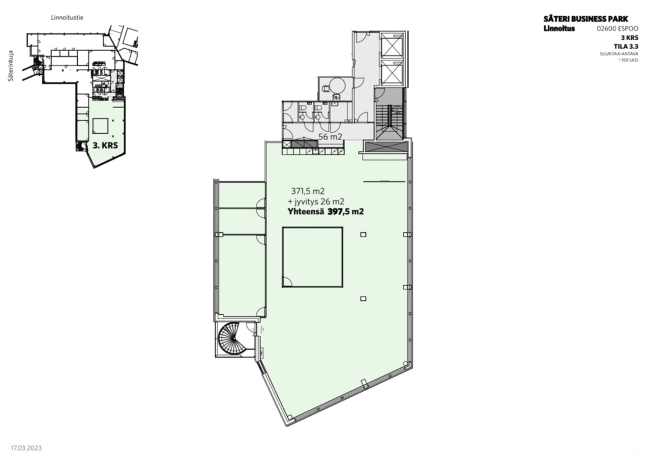
Vuokrataan moderni toimistotila Säteri Business Parkista. Toimistossa on avotilaa, tyylikäs keittiö, kokoontumistilaa ja työhuoneita. Tilaan voidaan tehdä asiakkaan toiveiden mukaan muutoksia. Kiinteistö sijaitsee Raide-Jokerin varrella kivenheiton päässä Sellosta ja Leppävaaran juna-asemasta.
Quartetto käsittää yhteensä 9 toimistotaloa ja se tarjoaa käyttäjilleen erinomaiset liiketoiminnan tukipalvelut, kuten useita henkilöstöravintoloita, kahvion, kokoustiloja, vastaanottopalvelut sekä liikunta- ja terveyspalveluita.
Lisätietoa 020 7290 710 ja lisää kohteita premises.fi.
Kohteella ei ole lain edellyttämää energiatodistusta tai energialuokka ei tiedossa.Kerros: 3
CRE PREMISES
Puh. Näytä puhelinnumero 020 7290 710
Vantaankoskentie 14
01670 VANTAA
