Vuokrataan toimistotilat - Helsinki
Uudenmaankatu 16-20, Punavuori, 00120 Helsinki #10747582
Täysin uudet, saneeratut tilat erinomaisella sijainnilla Annankadun ja Uudenmaankadun kulmassa.
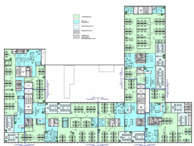
Vuokrattavana erilaisia liike- ja toimistotilojen tilakokonaisuuksia. Toisessa kerroksessa on toimistotilaa yhteensä 1751m2 ja kolmannessa kerroksessa yhteensä 1157m2. Kerrokset voidaan yhdistää tai niitä on mahdollista jakaa pienempiin osiin. Pohja on joustava ja mahdollistaa kaikki variaatiot täydestä huonetoimistosta avotilaan. Toisen kerroksen yhteydessä on sisäpihan puolella terassimahdollisuus sekä oma parveke. Tilat ovat raakapinnoilla, ja ne toteutetaan vuokralaisen tarpeiden mukaan.
Uudenmaankatu 16-20 eli Punavuoren Dekki on 1960-luvun toimisto- ja liikekiinteistö, joka saneerattiin täysin vuosien 2020-2021 aikana. Kiinteistöllä on erikoisuutena ydinkeskustassa oma iso parkkihalli, pyörähalli sekä suihkutilat.
Kysy lisää numerosta 044 723 4700 tai info@bref.fi. Palvelumme on tilanhakijoille ilmainen.
Bureau Real Estate Finland Oy
Lars Sonckin kaari 16, 02600 Espoo
Näytä puhelinnumero
0447234700
Bureau Real Estate Finland Oy
https://www.bref.fi