Vuokrataan toimistotilat - Valkeakoski
Lempääläntie 20, Keskusta, 37630 Valkeakoski #10747321
Toimistotilaa keskustassa
Osoite
Lempääläntie 20, 37630 Valkeakoski
Tilatyyppi
Toimistotilaa
1974 m2
Kiinteistö
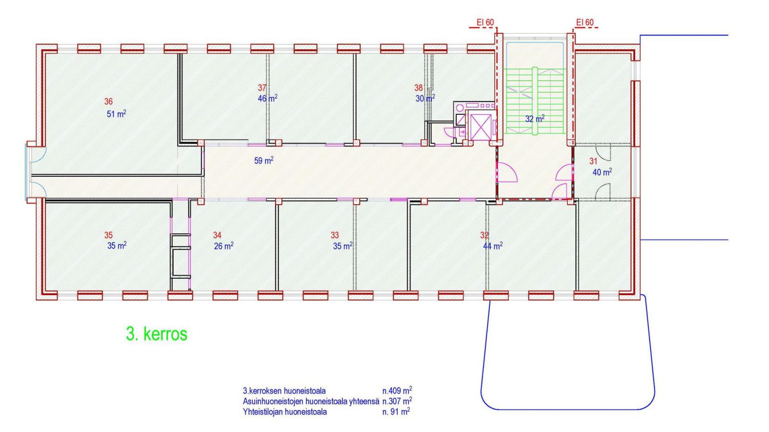
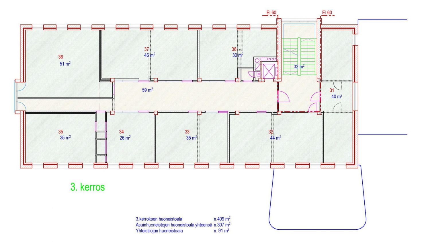
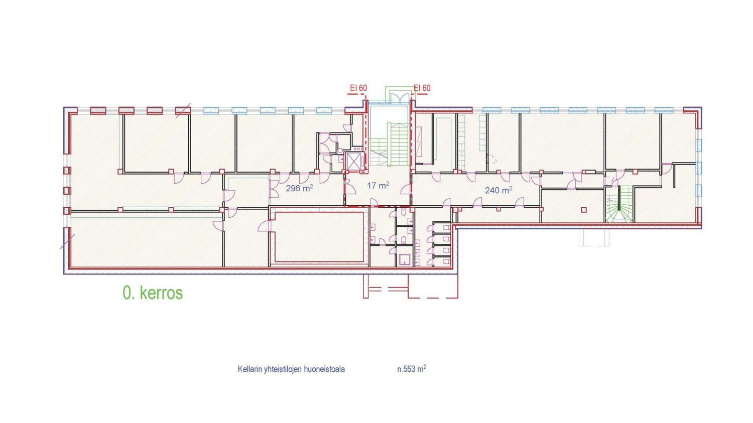
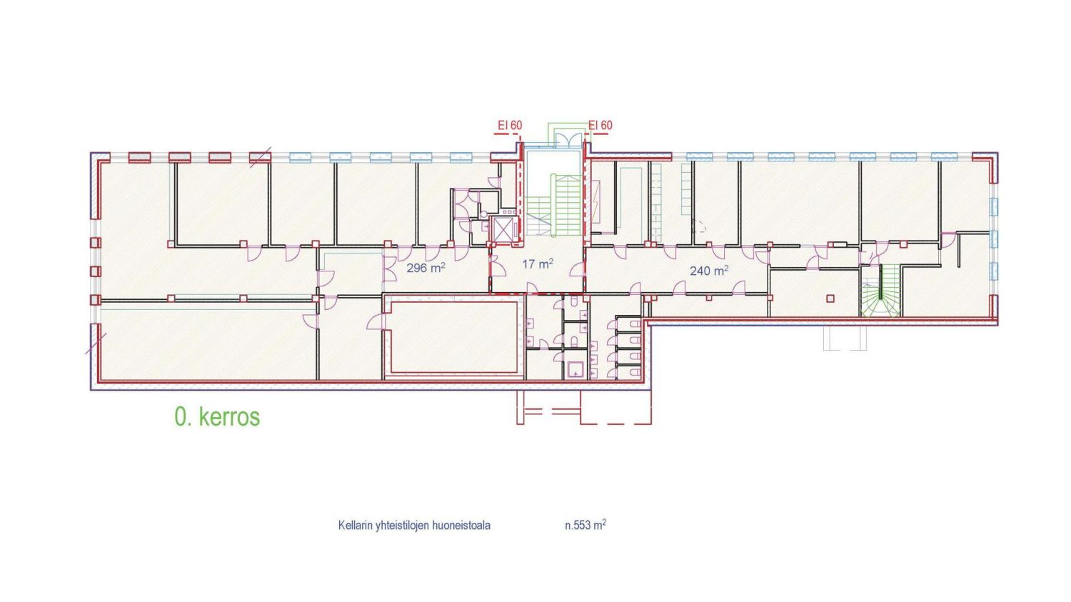
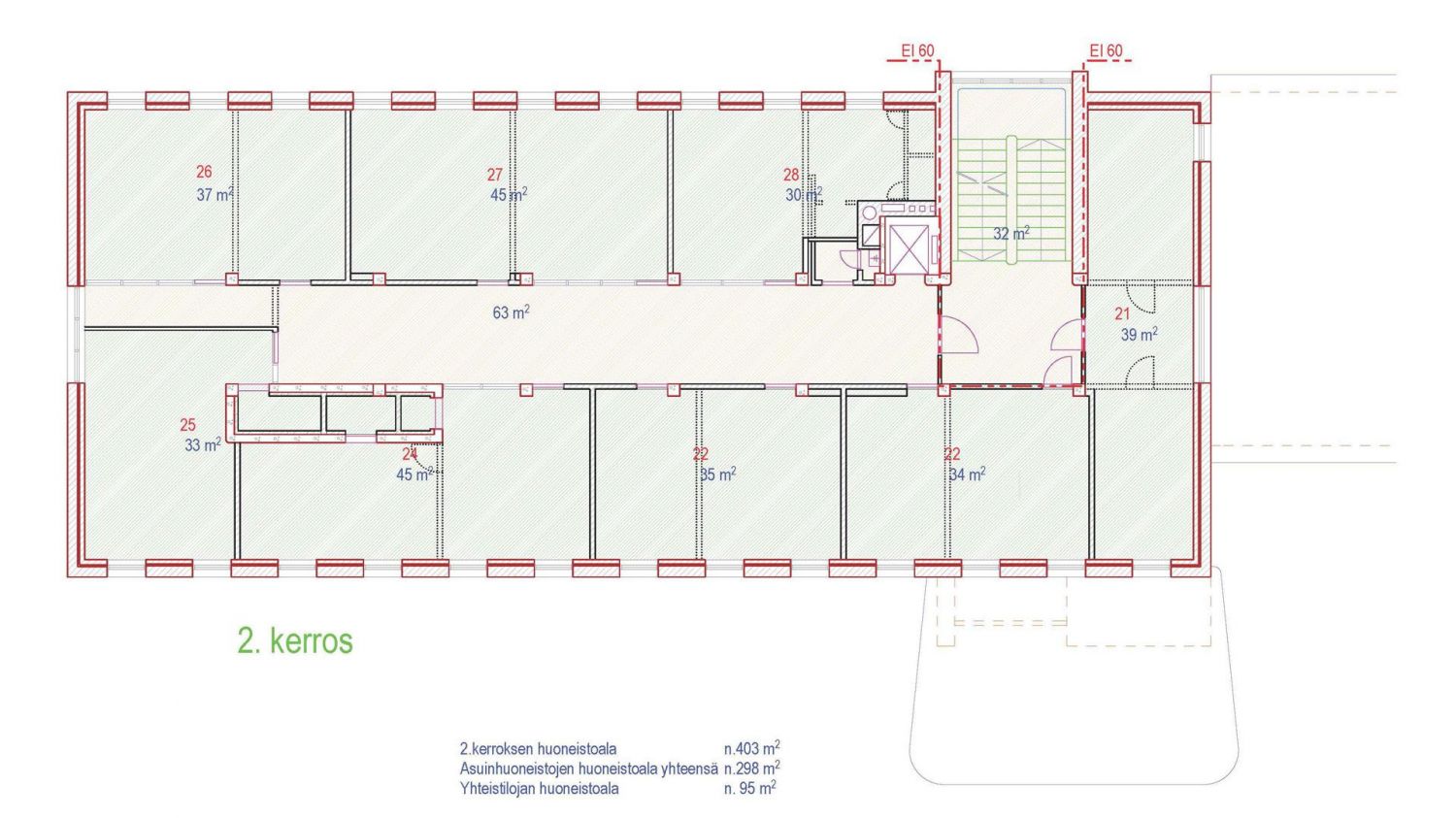
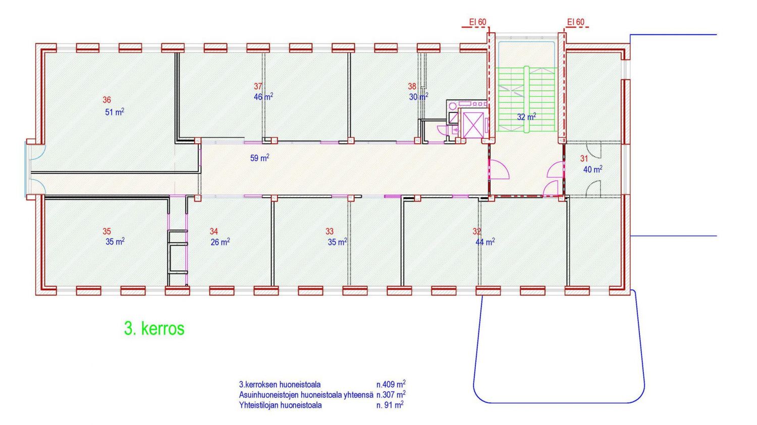
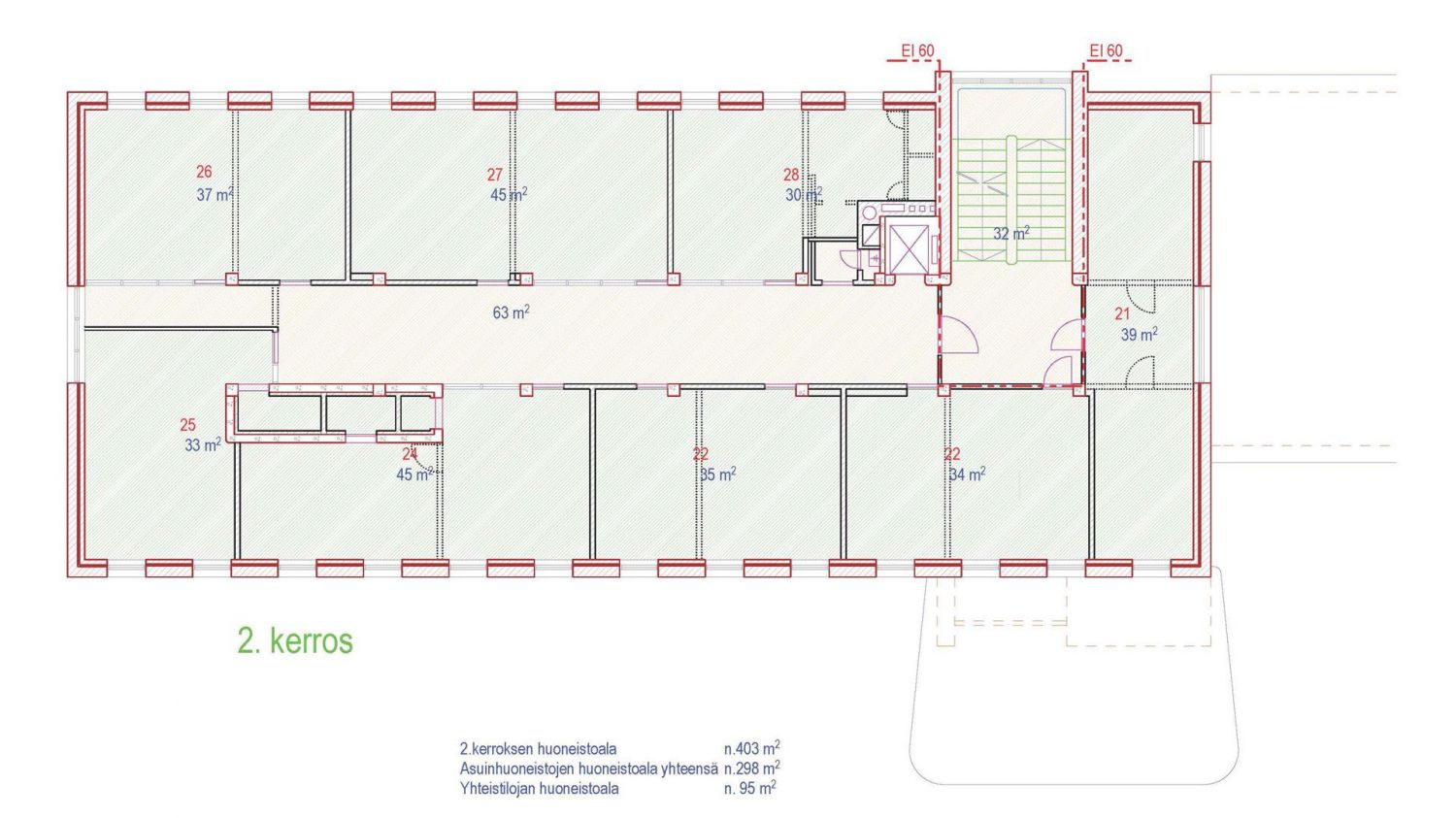
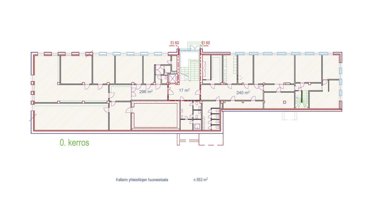
Vuokrataan Valkeakosken keskustassa vanha Yhtyneiden paperitehtaiden pääkonttori! Rakennus on valmistunut vuonna 1952 ja sen suunnitteli Pekka Saarema. Kellarikerroksen lisäksi rakennuksessa on kolme kerrosta. Jokainen kerros koostuu erikokoisista toimistohuoneista ja neuvottelutiloista. Käytävät ovat avarat ja huonekorkeus riittävä. Kellarikerroksessa on arkisto-, kassaholvi- ja varastotiloja.
Rakennuksessa on hissi. Lämmitysmuoto on kaukolämpö. Rakennus sijaitsee isolla, omalla, tontilla. Tontti on puistomainen ja siinä riittää paikoitus- ja virkistystilaa. Kohde on osa ns. Paperituotteen aluetta, jossa on teollisuusrakennuksia. Pohjoispuolella on kerrostaloasutusta ja S-market. Vastapäätä Lempääläntien toisella puolella on asutusta ja pieniä liiketiloja.
Kohdetta voidaan suunnitella myös muihin käyttötarkoituksiin kuten hoiva- ja palveluasumiskäyttöön tai majoitustoimintaan.
Rakennuksessa on hissi. Lämmitysmuoto on kaukolämpö. Rakennus sijaitsee isolla, omalla, tontilla. Tontti on puistomainen ja siinä riittää paikoitus- ja virkistystilaa. Kohde on osa ns. Paperituotteen aluetta, jossa on teollisuusrakennuksia. Pohjoispuolella on kerrostaloasutusta ja S-market. Vastapäätä Lempääläntien toisella puolella on asutusta ja pieniä liiketiloja.
Kohdetta voidaan suunnitella myös muihin käyttötarkoituksiin kuten hoiva- ja palveluasumiskäyttöön tai majoitustoimintaan.
Vapautuu
Kysy
Kerros
0.-3.
Ota yhteyttä
Logistila Oy
Kalevan puistotie 22 LT 4, 33500 Tampere
Tuomas Lehtinen
Näytä puhelinnumero
044 491 5961
Pyydä lisätietoa
