Vuokrataan toimistotilat - Helsinki
Hitsaajankatu 20-24, Herttoniemi, 00810 Helsinki #10747125
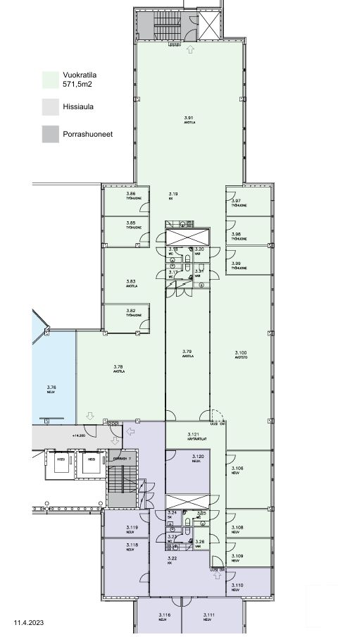
Vuokrattavana isokokoista toimistotilaa kiinteistön kolmannessa kerroksessa.
Osoite
Hitsaajankatu 20-24, 00810 Helsinki
Tilatyyppi
Toimistotilaa
571 m2
Kiinteistö
Vuokrattavana isokokoista toimistotilaa kiinteistön kolmannessa kerroksessa. Tilaa on mahdollista muokata vuokralaisen tarpeiden ja toivoiden mukaan.
Sijainti
Opus Business Park, Herttoniemi, Helsinki
Ympäristö
Kauppakeskus Mega-Hertsi ja S-Market.
Pysäköinti
Pysäköintihallit jokaisen toimistotalon kellarikerroksessa, joista vuokrattavissa autopaikkoja.
Palvelut
-Aulapalvelu
-Lounasravintola
-Vuokrattavat neuvottelutilat
-Kuntosali
-Lounasravintola
-Vuokrattavat neuvottelutilat
-Kuntosali
Kulkuyhteydet
-Bussi
-Metro
-Oma auto
-Metro
-Oma auto
Vapautuu
Heti
Kerros
3
Energiatehokkuusluokka
Ei lain edellyttämää energiatodistusta
Näkyvällä paikalla
Hissi
Ota yhteyttä
REALIUM OY LKV
Tammasaarenkatu 1, 00180 Helsinki
Vaihde:
Näytä puhelinnumero
010 326 346
Tuomo Mäkelä
tuomo.makela@realium.fi
p.
Näytä puhelinnumero
044 050 1158
Joel Keto
joel.keto@realium.fi
p.
Näytä puhelinnumero
045 317 0330
KAIKKI TILAVAIHTOEHDOT KERRALLA!
SOITA - MEILAA JA TILAA NÄYTTÖ!
Ilmainen palvelu tilanhakijoille.
Kartoitamme parhaat tilavaihtoehdot.
Kaikki kohteet eivät ole netissä.
Pyydä lisätietoa
