Vuokrataan toimistotilat - Helsinki
Hiomotie 3, Pitäjänmäki, 00380 Helsinki #10747082
Toimistotilaa huippusijainnilla Pitäjänmäellä
Osoite
Hiomotie 3, 00380 Helsinki
Tilatyyppi
Toimistotilaa
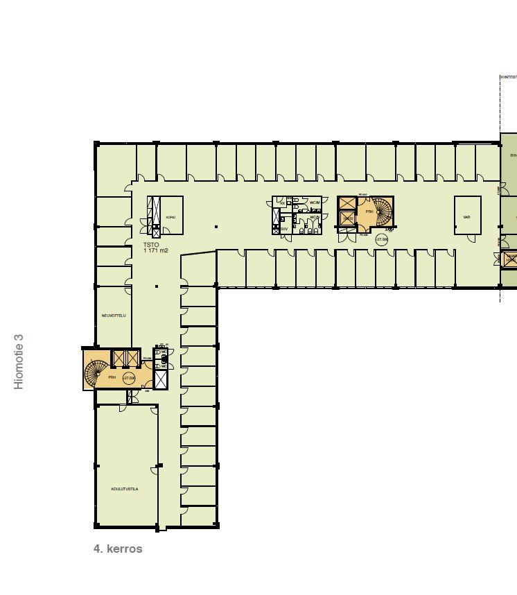
1171 m2
Pysäköinti
Hallissa
Muuta
Vuokrataan toimistotilaa huippusijainnilla Pitäjänmäen ytimessä, vuokrattava tila on 4. kerroksen 1171m2 toimistotila.
Helsingin Pitäjänmäellä sijaitseva Valimo Center muodostuu 4 kiinteistöstä, 3 rakennuksesta. Vuokrattavana on pienistä huonetoimistoista aina useampiin tuhansiin neliöihin koostuvasta kokonaisuudesta. Kiinteistön sijainti on erinomainen aivan Vihdintien vieressä, Valimotien linja-autopysäkki ja Valimon rautatieaseman pysäkki ovat vain 6min/300m kävelymatkan päässä.
Kaikkien vuokralaisten käytössä on Valimotie 13A palvelut kuten aulapalvelu, postipalvelu, sauna, kuntosali sekä tilat pyöräilijöille. Erittäin laadukas lounasravintola Factory ja vuokrattavia neuvotteluhuoneita on 3kpl Valimotie 13A ja 2kpl Valimotie 10:ssä. Oman auton käyttäjiä palvelee 380kpl autopaikkoja pihalla ja hallissa.
Vuokraan kuuluu aulapalvelu, 100m2 kuntosali, suihku, sauna ja pyöräilijöiden tilat.
Kiinteistö Hiomotie 3 on rakennettu 1994 ja peruskorjattu 2017. Kiinteistössä on koneellinen jäähdytetty ilmanvaihto, tavarahissi kohteen kolmeen ensimmäiseen kerrokseen ja lastauslaituri.
Sisäkuvat ovat yleiskuvia kiinteistön sisällä.
Tervetuloa tutustumaan, varaathan välittäjältä oman esittelyaikasi. Voit kysyä meiltä myös muita sopivia vaihtoehtoja, kauttamme löydät juuri teidän tarpeisiinne sopivat tilat. Palvelumme on tilanhakijalle veloitukseton!
Helsingin Pitäjänmäellä sijaitseva Valimo Center muodostuu 4 kiinteistöstä, 3 rakennuksesta. Vuokrattavana on pienistä huonetoimistoista aina useampiin tuhansiin neliöihin koostuvasta kokonaisuudesta. Kiinteistön sijainti on erinomainen aivan Vihdintien vieressä, Valimotien linja-autopysäkki ja Valimon rautatieaseman pysäkki ovat vain 6min/300m kävelymatkan päässä.
Kaikkien vuokralaisten käytössä on Valimotie 13A palvelut kuten aulapalvelu, postipalvelu, sauna, kuntosali sekä tilat pyöräilijöille. Erittäin laadukas lounasravintola Factory ja vuokrattavia neuvotteluhuoneita on 3kpl Valimotie 13A ja 2kpl Valimotie 10:ssä. Oman auton käyttäjiä palvelee 380kpl autopaikkoja pihalla ja hallissa.
Vuokraan kuuluu aulapalvelu, 100m2 kuntosali, suihku, sauna ja pyöräilijöiden tilat.
Kiinteistö Hiomotie 3 on rakennettu 1994 ja peruskorjattu 2017. Kiinteistössä on koneellinen jäähdytetty ilmanvaihto, tavarahissi kohteen kolmeen ensimmäiseen kerrokseen ja lastauslaituri.
Sisäkuvat ovat yleiskuvia kiinteistön sisällä.
Tervetuloa tutustumaan, varaathan välittäjältä oman esittelyaikasi. Voit kysyä meiltä myös muita sopivia vaihtoehtoja, kauttamme löydät juuri teidän tarpeisiinne sopivat tilat. Palvelumme on tilanhakijalle veloitukseton!
Vapautuu
Kysy
Rakennusvuosi
1994
Kerros
4
Ota yhteyttä
Tuloskiinteistöt Oy
Rikhardinkatu 2 B 5, 00130 Helsinki
Näytä puhelinnumero
(09) 6841 620
Jorma Ryynänen
Commercial Real Estate Advisor LKV, LVV
Näytä puhelinnumero
+358 40 708 4064
Nina Meyke
Commercial Real Estate Advisor
Näytä puhelinnumero
+358 50 466 1519
Pyydä lisätietoa
