Vuokrataan toimistotilat - Helsinki
Mikonkatu 8, Keskusta, 00100 Helsinki #10747029
Toimistotilaa keskeisellä paikalla Helsingin ydinkeskustassa.
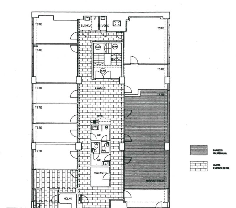
Tämä 319,5m2 toimistotila koostuu huoneista. Tilassa on myös oma neuvotteluhuone sekä keittiö ja wc-tilat. Tila on arvonlisäveroton.
Mikonkatu 8 eli Aikatalo sijaitsee Ateneumin takana Helsingin keskustassa. Sijainti aivan rautatieaseman sekä Rautatientorin linja-autoaseman lähellä takaa loistavat julkisen liikenteen yhteydet. Myös Kaisaniemen metroasema on aivan lyhyen kävelymatkan päässä. Henkilöautoilijoille löytyy parkkitilaa Engelin ja Kluuvin pysäköintilaitoksissa.
Kysy lisää numerosta 044 723 4700 tai info@bref.fi. Palvelumme on tilanhakijoille ilmainen.
Bureau Real Estate Finland Oy
Lars Sonckin kaari 16, 02600 Espoo
Näytä puhelinnumero
0447234700
Bureau Real Estate Finland Oy
https://www.bref.fi