Vuokrataan toimistotilat - Oulu
Kempeleentie, Limingantulli, 90400 Oulu #10746553
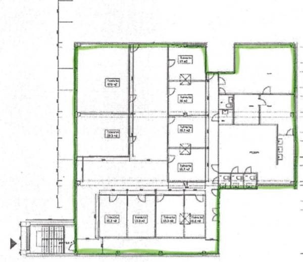
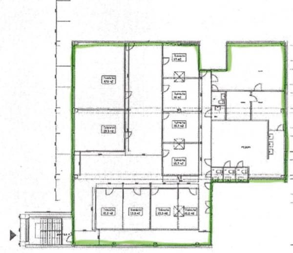
Toimistotilaa
Osoite
Kempeleentie, 90400 Oulu
Tilatyyppi
Toimistotilaa
250 - 555 m2
Kiinteistö
Toimistotila, jossa sekä avotilaa, että yksittäisiä toimistohuoneita, sekä sosiaalitilat. Tila muokattavissa ja tarvittaessa jaettavissakin.
Rakennuksessa on koneellinen tulo ja poistoilmanvaihtojärjestelmä. Huoneistossa lisäksi ATK-lähiverkko.
Rakennuksessa on koneellinen tulo ja poistoilmanvaihtojärjestelmä. Huoneistossa lisäksi ATK-lähiverkko.
Pysäköinti
Piha-alueella
Kulkuyhteydet
Paikallinen liikenne
Vapautuu
Kysy
Kerros
2
Ota yhteyttä
TopReal
Hietalahdenranta 17 B, 00180 Helsinki
Näytä puhelinnumero
09 6227 7852
Soita ja kysy lisää, tai tutustu www-sivuihimme!
http://www.topreal.fiPyydä lisätietoa
