Vuokrataan toimistotilat - Helsinki
Itämerenkatu 1, Ruoholahti, 00180 Helsinki #10746488
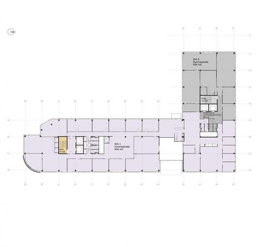
4. kerroksen toimistotila modernista liikerakennuksesta. Loistava sijainti Länsisataman sekä metro- ja raitiovaunupysäkin läheisyydestä.
Kiinteistö Oy Westport on vuonna 1998 valmistunut moderni liikerakennus. Kiinteistön valoisat ja joustavat toimistotilat soveltuvat niin avotoimistoksi kuin huonetoimistoksi.
Kiinteistö Oy Westport sijaitsee parhaalla paikalla Ruoholahdessa vilkkaan Länsisataman läheisyydessä ja parin tunnin päässä Tallinnasta. Kiinteistölle on helppo saapua omalla autolla. Kiinteistö Oy Westportin oman pysäköintihallin lisäksi vuokralaisilla on käytössä pysäköintitilaa viereisestä Ruohoparkista, josta on lämmin kulkuyhteys kiinteistöön.
Lisätietoa numerosta 020 7290 710. Lisää kohteita osoitteessa premises.fi.
Energialuokka E.Kerros: 4
CRE PREMISES
Puh. Näytä puhelinnumero 020 7290 710
Vantaankoskentie 14
01670 VANTAA
