Vuokrataan toimistotilat - Helsinki
Kalasataman Trooli, Panimokatu 2, Kalasatama, 00580 Helsinki #10745555
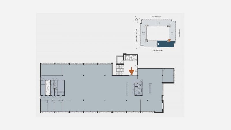
Korkeatasoinen 786 m² toimisto Kalasataman ja Teurastamon solmukohdassa.
Osoite
Panimokatu 2, 00580 Helsinki
Tilatyyppi
Toimistotilaa
786 m2
Pohjapiirros
Kiinteistö
Täysin remontoitu toimistotila Troolin A-rapussa. Pääosin avotilaa, hieno aula ja tyylikäs keittiö, toimivat neuvotteluhuoneet (3 x 2-4 hlö, 1 x 7-8 hlö, 1 x 14 hlö, 1 x 15 hlö). Ikkunoista näkymät Suvilahteen ja kiinteistön sisäpihalle. Katso kuvat!
Kiinteistön tilat ovat joustavasti muokattavissa vastaamaan käyttäjän tarpeisiin. Historiallinen miljöö, joka on täynnä trendikkäitä kohtaamisalueita ja viihtyisiä lounaspaikkoja, kuten Teurastamon alueen ravintolat.
Trooli on kolmesta kiinteistöstä muodostuva moderni toimitilakortteli, joka tarjoaa asiakkailleen edustavat puitteet, nykyaikaiset ja joustavat tilat sekä hyvät tekniset valmiudet. Troolin naapurusto on uusien pääkonttoreiden ja lukuisten yritysten asuttama urbaani työelämän keskus. Aluetta ympäröivät erinomaiset kulkuyhteydet, laajat arjen palvelut sekä globaalisti tunnustetut kulttuuri-ilmiöt.
Trooli on sijaitsee loistavalla paikalla Kalasatamassa, metroaseman välittömässä läheisyydessä. Nykyaikaiset tilat ovat korkealaatuiset ja muuntojoustavat, yhdelle isolle tai useammalle käyttäjälle. Huonekorkeudet kiinteistössä 2,7-3,2 m. Jokaisessa rapussa on 2 henkilöhissiä, joissa kapasiteetti 1000 kg/13 hlö, oven mitat n. 208×110 cm.
Kiinteistössä on aulapalvelu, vuokrattavia neuvottelutiloja, lounasravintola, pyöräparkki, autohalli, kuntosali sosiaalitiloineen. Kellarikerroksesta vuokrattavissa pienvarastotilaa. Kulku tilojen välillä sujuu näppärästi sisäpihan tai autohallin kautta.
Kiinteistön tilat ovat joustavasti muokattavissa vastaamaan käyttäjän tarpeisiin. Historiallinen miljöö, joka on täynnä trendikkäitä kohtaamisalueita ja viihtyisiä lounaspaikkoja, kuten Teurastamon alueen ravintolat.
Trooli on kolmesta kiinteistöstä muodostuva moderni toimitilakortteli, joka tarjoaa asiakkailleen edustavat puitteet, nykyaikaiset ja joustavat tilat sekä hyvät tekniset valmiudet. Troolin naapurusto on uusien pääkonttoreiden ja lukuisten yritysten asuttama urbaani työelämän keskus. Aluetta ympäröivät erinomaiset kulkuyhteydet, laajat arjen palvelut sekä globaalisti tunnustetut kulttuuri-ilmiöt.
Trooli on sijaitsee loistavalla paikalla Kalasatamassa, metroaseman välittömässä läheisyydessä. Nykyaikaiset tilat ovat korkealaatuiset ja muuntojoustavat, yhdelle isolle tai useammalle käyttäjälle. Huonekorkeudet kiinteistössä 2,7-3,2 m. Jokaisessa rapussa on 2 henkilöhissiä, joissa kapasiteetti 1000 kg/13 hlö, oven mitat n. 208×110 cm.
Kiinteistössä on aulapalvelu, vuokrattavia neuvottelutiloja, lounasravintola, pyöräparkki, autohalli, kuntosali sosiaalitiloineen. Kellarikerroksesta vuokrattavissa pienvarastotilaa. Kulku tilojen välillä sujuu näppärästi sisäpihan tai autohallin kautta.
Sijainti
Kalasatama
Pysäköinti
Autohalli ja pihapaikkoja
Palvelut
Alueella monipuoliset ravintola- ja kulttuuripalvelut
Kulkuyhteydet
Metroasema 500 m, Raitiovaunupysäkki 500 m, Bussipysäkki alle 100 m, Juna-asema 2,9 km, Lentoasema 16,6 km
Vapautuu
Heti
Rakennusvuosi
2002
Kerros
3 / 6
Energiatehokkuusluokka
C2018
Näkyvällä paikalla
Hissi
Ota yhteyttä
ScanReal Oy LKV
Opus Business Park
Hitsaajankatu 24
00810 Helsinki
info@scanreal.fi
Puh:
Näytä puhelinnumero
020 730 8830
Sopivat toimitilat yhdellä otolla!
Kartoitamme toimitilatarpeesi ja etsimme yrityksellesi parhaiten sopivat vapaat toimitilat. Koska vuokranantajat maksavat palvelumme, on tämä yrityksellesi veloituksetonta.
OTA YHTEYTTÄ - SOVI NÄYTTÖ!
Kaikki kohteemme eivät ole netissä, kerro tilatarpeesi niin kartoitamme vaihtoehdot.
Palvelumme on tilanhakijalle ilmainen
Pyydä lisätietoa
