Vuokrataan toimistotilat - Helsinki
Laippatie 4, Roihupelto, 00880 Helsinki #10745480
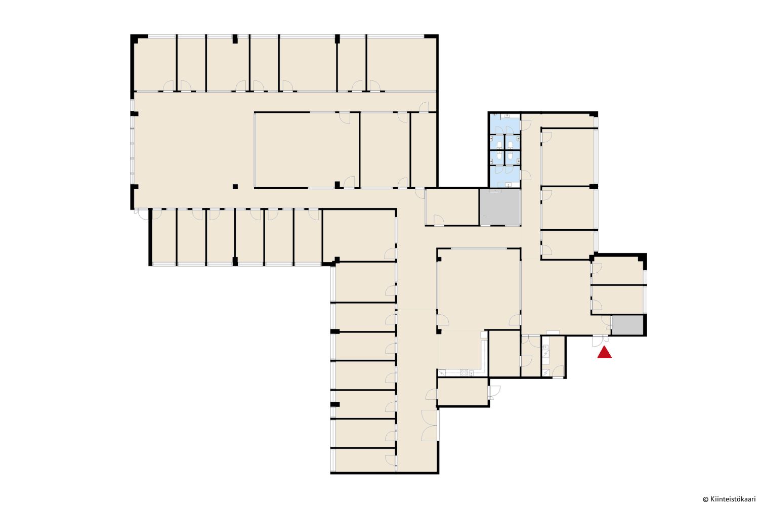
Siistissä kunnossa oleva toimistotila. Pääosin työhuoneisiin jaettua työtilaa, useita neuvottelu- ryhmätyöhuoneita. Kiinteistönomistaja on tarvittaessa valmis tekemään tilankäytöllisiä muutostöitä. Kysy lisätietoja!
Osoite
Laippatie 4, 00880 Helsinki
Tilatyyppi
Toimistotilaa
888 - 2150 m2
Tilajako
Jaettavissa / laajennettavissa 1355m² / 2150 m²
Kiinteistö
Helsingin Laippatie 4
Pysäköinti
Talon pihalta ja lämpimästä pysäköintihallista on vuokrattavissa pysäköintipaikkoja. Vieraspysäköintipaikat sijaitsevat talon pihalla. Lisäksi Laippatien varrella on maksuttomia kadunvarsipaikkoja.
Palvelut
Henkilöstöravintola
Muuta
Tilan ominaisuudet: tilassa on ilmastointi
Vapautuu
Heti vapaa
Kerros
4.
Ota yhteyttä
Kiinteistökaari Oy
Haapaniemenkatu 9, 00530 Helsinki
Näytä puhelinnumero
050 5050 535
Tony Tuominen
Näytä puhelinnumero
050 505 0535
Jarkko Kilpinen
Näytä puhelinnumero
0400 490 679
Kiinteistökaari Oy on kiinteistösijoitusyhtiö, joka ostaa, kehittää, myy, vuokraa ja hallinnoi laadukkaita kiinteistökohteita pääkaupunkiseudulla.
https://kiinteistokaari.fiPyydä lisätietoa
