Vuokrataan toimistotilat - Helsinki
Laippatie 4, Roihupelto, 00880 Helsinki #10745434
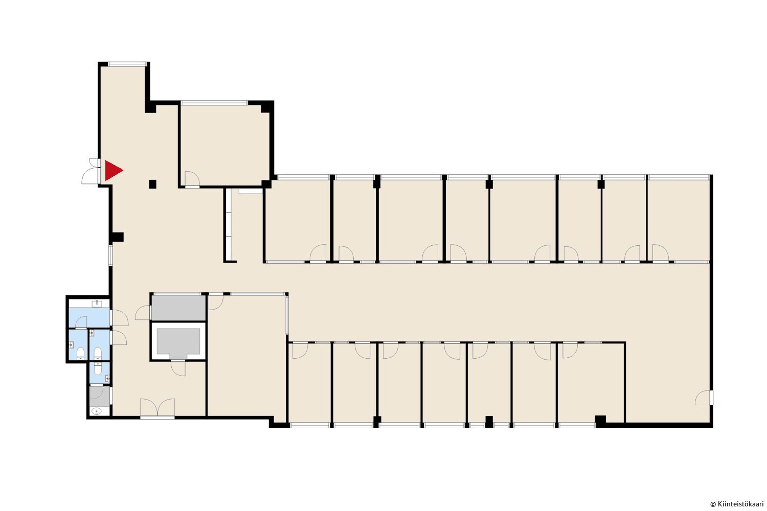
Tämä on esimerkki n. tilavasta n. 20-25 henkilön organisaatiolle soveltuvasta, ilmavasta toimistotilasta. Nykymuodossaan huoneisiin jaettua toimistotilaa, jota voidaan helposti muokata väliseinämuutoksin osin avotyötilaa tai erilaisia ryhmätyö- ja projektitiloja sisältäväksi kokonaisuudeksi. Yhdistettävissä viereisen tilan kanssa. Varmasti kilpailukykyinen vuokra! Ota yhteyttä ja kysy lisätietoja!
Kiinteistökaari Oy
Haapaniemenkatu 9, 00530 Helsinki
Näytä puhelinnumero
050 5050 535
Riku Nisula
Näytä puhelinnumero
040 923 0781
Tony Tuominen
Näytä puhelinnumero
050 505 0535
Jarkko Kilpinen
Näytä puhelinnumero
0400 490 679
Kiinteistökaari Oy on kiinteistösijoitusyhtiö, joka ostaa, kehittää, myy, vuokraa ja hallinnoi laadukkaita kiinteistökohteita pääkaupunkiseudulla.
https://kiinteistokaari.fi