Vuokrataan toimistotilat - Helsinki
Itämerenkatu 1, Ruoholahti, 00180 Helsinki #10745347
Muuntojoustava hyväkuntoinen toimistotila Ruoholahdessa Itämerenkadun ja Mechelininkadun risteyksessä. Toimistossa on huoneita ja avotilaa sekä taukotila.
Talossa on erittäin kattavat oheispalvelut kuten: - aulapalvelu, - neuvottelukeskus, lounasravintola, - sauna ja edustustilat katolla, - kuntosali, - autohalli ym. Huom! Kuvat ovat esimerkkikuvia kiinteistön tiloista.
Ota yhteyttä ja sovi esittely, vuokrauspalvelumme on tilanhakijalle maksuton.
Osoite
Itämerenkatu 1, 00180 Helsinki
Tilatyyppi
Toimistotilaa
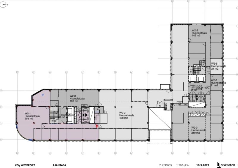
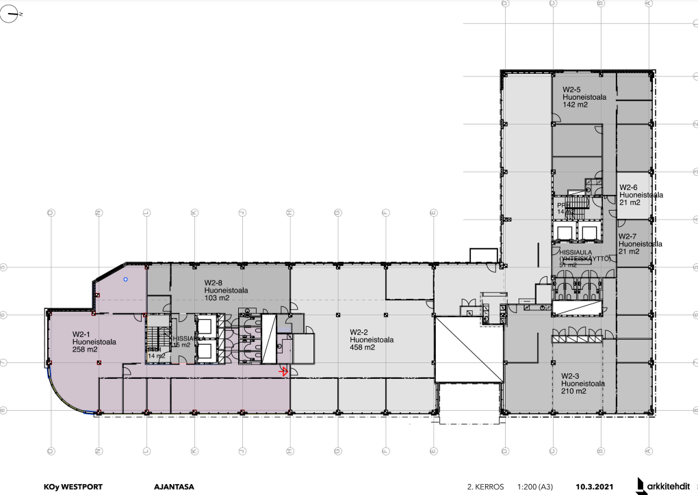
258 m2
Pohjapiirros
Kiinteistö
Toimistotalo WESTPORT
Sijainti
Itämerenkadun itäpäässä.
Pysäköinti
Oman kiinteistön autohallista saatavana p-paikkoja ja tarvittaessa runsaasti lisää viereisestä Ruohoparkista.
Kulkuyhteydet
Metro, bussit, ratikat.
Vapautuu
Heti
Kerros
2 / 7
Energiatehokkuusluokka
Ei lain edellyttämää energiatodistusta
Näkyvällä paikalla
Hissi
Ota yhteyttä
Senaatin Notariaatti Oy LKV
Lämmittäjänkatu 4 A
FIN-00880 Helsinki
Tel:
Näytä puhelinnumero
+358 9 7745 100
Pyydä lisätietoa
