Vuokrataan toimistotilat, tuotantotilat, varastotilat - Jyväskylä
Vesangantie 1, Rautpohja, 40700 Jyväskylä #10745034
Vuokrataan laadukasta tuotanto-, varasto- ja toimistotilaa Rautpohjasta
Osoite
Vesangantie 1, 40700 Jyväskylä
Tilatyyppi
Toimistotilaa
230 - 1500 m2
Tuotantotilaa
1000 - 10000 m2
Varastotilaa
1000 - 10000 m2
Yhteensä
230 - 10000 m2
Kiinteistö
Vuokrataan laadukasta ja isoa tuotanto-, varasto- ja toimistotilaa Jyväskylän Rautpohjasta!
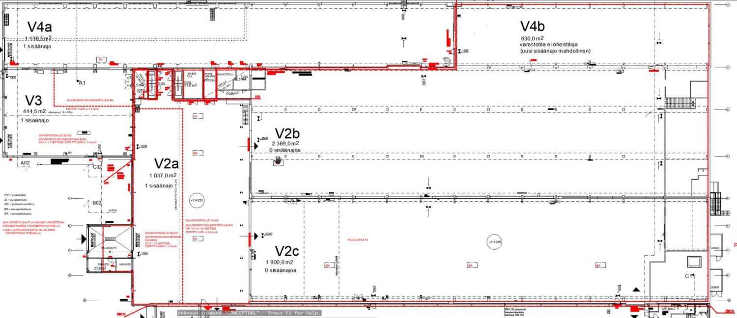
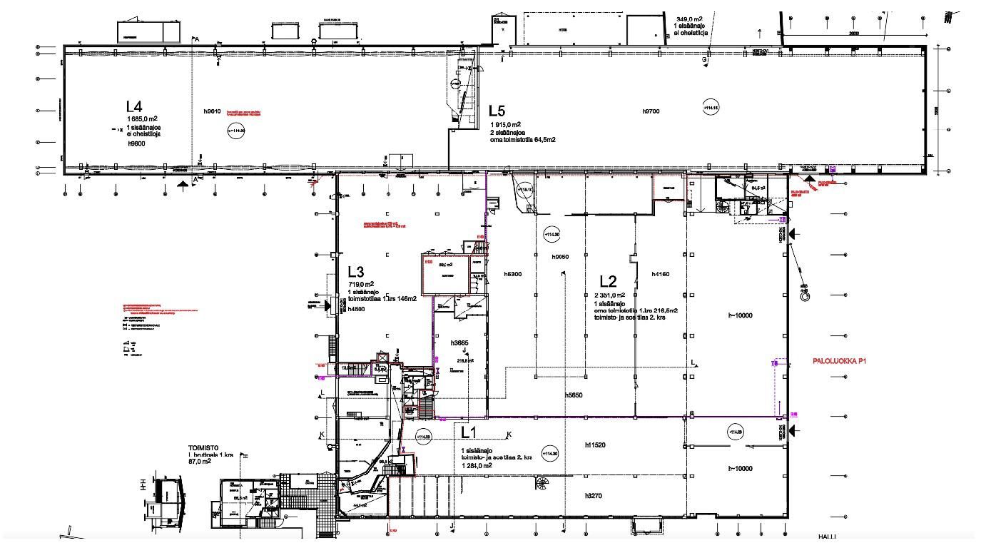
Nämä modernit ja viihtyisät tuotantotilat sopivat erilaiseen teolliseen tuotantoon, mukaan lukien raskaan teollisuuden. Yhdessä hallissa on karkaisuun tarkoitetut laitteistot paikoillaan. Tilat sopivat tietyiltä osin myös logistiikka-alan toimijoille. Alueella ei ole tällä hetkellä lastauslaitureita. Kiinteistöstä löytyy modernit ja siistit toimistotilat toimihenkilöille. Alue on kokonaisuudessaan aidattu.
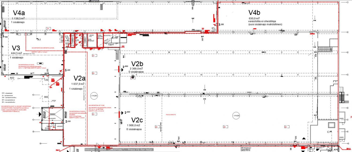
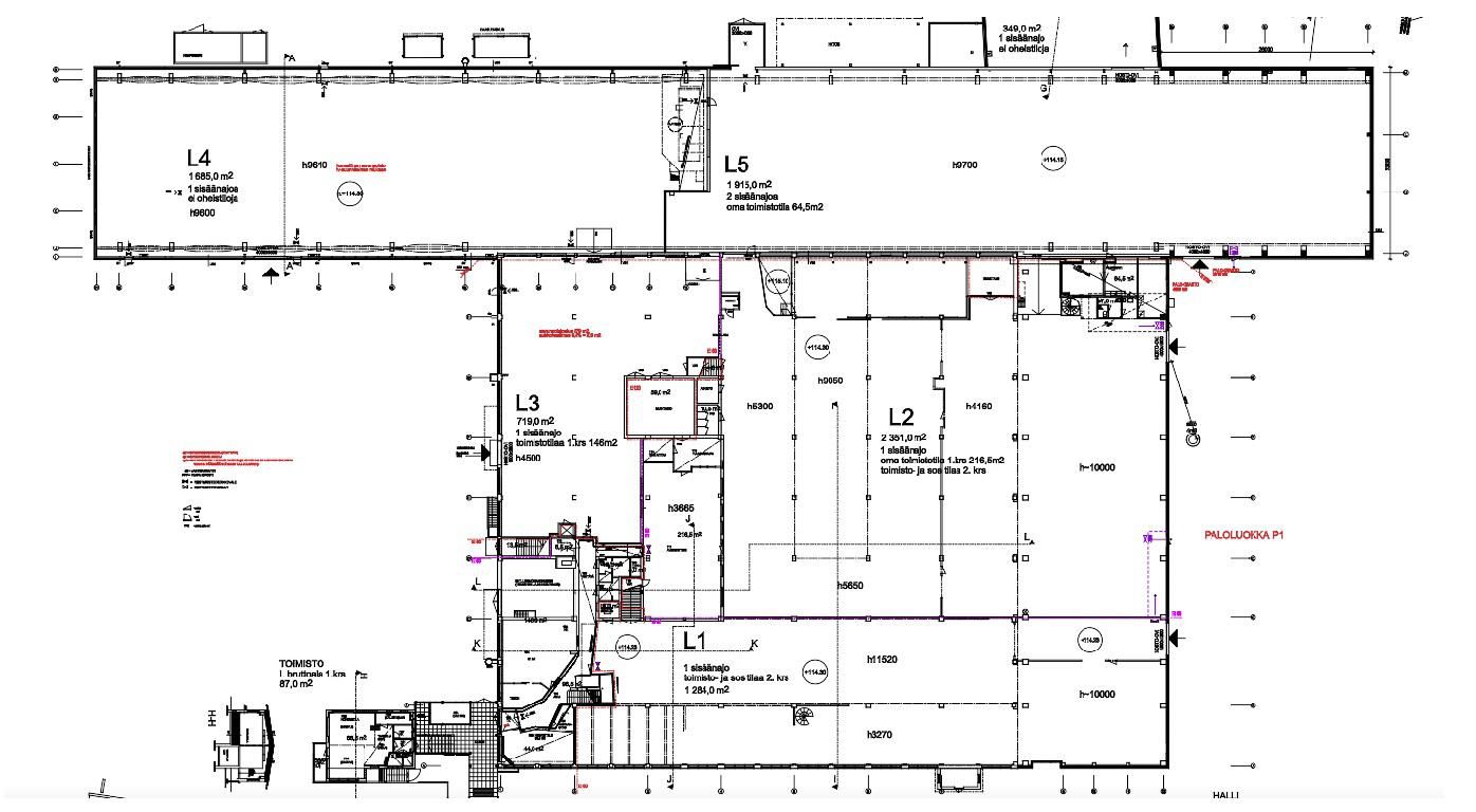
Tilat koostuvat erilaisista hallitiloista, joita voidaan tarvittaessa jakaa eri toimintojen ja/tai toimijoiden kesken. Hallien vapaakorkeus vaihtelee 3 - 11 metrin välillä.
Halleissa on runsaasti siltanostureita aina 32 tonnia nostaviin nostureihin asti. Halleissa on myös lattiakiskoja kappaleiden siirtoa varten. Kaikissa halleissa on isot nosto-ovet. Halleissa myös sosiaali- ja taukotiloja henkilökunnalle. Tiloissa on koneellinen tulo- ja poistoilma. Noin 90 % tiloista on jäähdytetty.
Sijainti
Tilat sijaitsevat perinteikkäällä Rautpohjan-teollisuusalueella, jossa toimii mm. Valmet, Outokumpu ja Componenta. Rautpohja - Hippos - Savela alueella toimii useita lounaspaikkoja. Alueelta löytyy myös päivittäistavarakauppoja ja erilaisia palveluja tuottavia yrityksiä. Jyväskylän matkakeskukselle matkaa noin 2,4 km. Jyväskylän keskustaan n. 2 km.
Soita Kimmolle 0452644180 tai laita viestiä kimmo.oravuo@logistila.fi, niin mennään paikanpäälle tutustumaan kohteeseen!
Nämä modernit ja viihtyisät tuotantotilat sopivat erilaiseen teolliseen tuotantoon, mukaan lukien raskaan teollisuuden. Yhdessä hallissa on karkaisuun tarkoitetut laitteistot paikoillaan. Tilat sopivat tietyiltä osin myös logistiikka-alan toimijoille. Alueella ei ole tällä hetkellä lastauslaitureita. Kiinteistöstä löytyy modernit ja siistit toimistotilat toimihenkilöille. Alue on kokonaisuudessaan aidattu.
Tilat koostuvat erilaisista hallitiloista, joita voidaan tarvittaessa jakaa eri toimintojen ja/tai toimijoiden kesken. Hallien vapaakorkeus vaihtelee 3 - 11 metrin välillä.
Halleissa on runsaasti siltanostureita aina 32 tonnia nostaviin nostureihin asti. Halleissa on myös lattiakiskoja kappaleiden siirtoa varten. Kaikissa halleissa on isot nosto-ovet. Halleissa myös sosiaali- ja taukotiloja henkilökunnalle. Tiloissa on koneellinen tulo- ja poistoilma. Noin 90 % tiloista on jäähdytetty.
Sijainti
Tilat sijaitsevat perinteikkäällä Rautpohjan-teollisuusalueella, jossa toimii mm. Valmet, Outokumpu ja Componenta. Rautpohja - Hippos - Savela alueella toimii useita lounaspaikkoja. Alueelta löytyy myös päivittäistavarakauppoja ja erilaisia palveluja tuottavia yrityksiä. Jyväskylän matkakeskukselle matkaa noin 2,4 km. Jyväskylän keskustaan n. 2 km.
Soita Kimmolle 0452644180 tai laita viestiä kimmo.oravuo@logistila.fi, niin mennään paikanpäälle tutustumaan kohteeseen!
Vapautuu
Kysy
Kerros
1
Siltanosturi
Ota yhteyttä
Logistila Oy
Yliopistonkatu 8, 40100 JYVÄSKYLÄ
Kimmo Oravuo
Näytä puhelinnumero
0452644180
Pyydä lisätietoa
